マツモト産業ビル

マツモト産業ビル 貸室情報
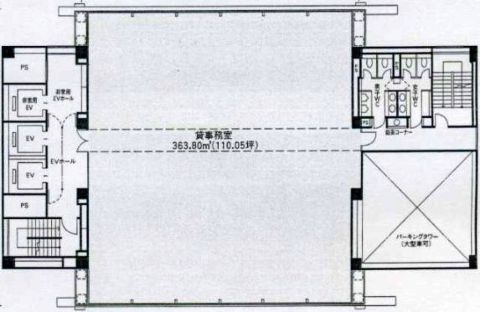
| 種別 | 貸事務所 |
|---|---|
| 物件名 | マツモト産業ビル |
| 住所 | 大阪市西区靱本町1-12-6 |
| 最寄駅 | 四ツ橋線 『
本町 』
1 分
四ツ橋線 『 肥後橋 』 5 分 御堂筋線 『 本町 』 4 分 |
| 構造 | 14階建 /地下 2 階 |
| 築年数 | 1992/7 【新耐震基準】 |
| 設備
|
|
営業マンの一言 大阪メトロ四ツ橋線 本町駅徒歩1分 肥後橋駅・御堂筋線本町駅徒歩圏内 本町通に面した視認性の高い賃貸テナントビル |
|
| 備考 | 貸し会議室 |

※取引態様:仲介
※上記、金額は募集条件です。 条件交渉など、詳細についてはお問合せ下さい。
※広告作成中に契約済みの場合はご容赦下さい。
※図面等現況が相違する場合は現況優先にてご容赦下さい。
マツモト産業ビルの所在地周辺
物件を再検索する
近隣のよく似た坪数の貸事務所
-
三共本町ビル
大阪市西区靱本町1
四ツ橋線「本町」徒歩4分
77.18坪 -
信濃橋三井ビル
大阪市西区靱本町1
四ツ橋線「本町」徒歩1分
74.04坪 -
大阪建大ビル
大阪市西区西本町1
四ツ橋線「本町」徒歩1分
78.03坪 -
ワイダ本町ビル
大阪市西区西本町1
四ツ橋線「本町」徒歩1分
80.0坪 -
アイデム西本町第2ビル(旧:コーンズハウス)
大阪市西区西本町1
四ツ橋線「本町」徒歩2分
78.05坪 -
インテリンクス西本町ビル
大阪市西区西本町2
四ツ橋線「本町」徒歩6分
77.0坪





堀中 忠久









