アール肥後橋ビル

丹羽 美智子ニワミチコ
「アール肥後橋ビル」は、大阪市西区江戸堀1丁目にございます賃貸事務所。
四ツ橋筋に面した、6階建て。
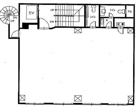
使い勝手の良い、広さ約30坪のワンフロア貸しオフィスビル。
駅近の独立性が確保された、1フロア・1テナント仕様は、来店型オフィスや派遣会社事務所にオススメ物件。
ほぼ正方形に近い貸室は採光も良く、レイアウトもフレキシブル。
給湯室など水回りを専用使用できつつ、トイレが男女別に分かれているのも、うれしいポイントです。
大阪市営地下鉄四つ橋線の「肥後橋駅」より徒歩1分。
御堂筋線の「淀屋橋駅」へも徒歩4分と、フットワークの良いビジネス立地です。
アール肥後橋ビル 貸室情報
| 種別 | 貸事務所 |
|---|---|
| 物件名 | アール肥後橋ビル |
| 住所 | 大阪市西区江戸堀1-8-17 |
| 最寄駅 | 四ツ橋線 『
肥後橋 』
1 分
御堂筋線 『 淀屋橋 』 4 分 |
| 構造 | 鉄筋コンクリート造 6階建 |
| 築年数 | 1981/1 (リニューアル: 2008/11 ) |
| 設備
|
|
営業マンの一言 四ツ橋筋沿いのワンフロア貸し事務所大阪メトロ四ツ橋線 肥後橋駅徒歩1分 大阪メトロ御堂筋線 淀屋橋駅4分 ワンフロアワンテナント 24時間利用可能 2008年全館リニューアル済み賃貸物件 |
|

※取引態様:仲介
※上記、金額は募集条件です。 条件交渉など、詳細についてはお問合せ下さい。
※広告作成中に契約済みの場合はご容赦下さい。
※図面等現況が相違する場合は現況優先にてご容赦下さい。
アール肥後橋ビルの所在地周辺
物件を再検索する
近隣のよく似た坪数の貸事務所
-
肥後橋レックスビル
大阪市西区江戸堀1
四ツ橋線「肥後橋」徒歩1分
34.23坪 -
太陽ビル
大阪市西区江戸堀1
四ツ橋線「肥後橋」徒歩1分
30.21坪 -
肥後橋渡辺ビル
大阪市西区江戸堀1
四ツ橋線「肥後橋」徒歩1分
30.56坪 -
肥後橋ニッタイビル
大阪市西区江戸堀1
四ツ橋線「肥後橋」徒歩1分
31.17坪 -
昭和ビルディング(江戸堀)
大阪市西区江戸堀1
四ツ橋線「肥後橋」徒歩3分
35.93坪 -
肥後橋エフビル(旧:肥後橋延三)
大阪市西区江戸堀1
四ツ橋線「肥後橋」徒歩1分
31.13坪 -
肥後橋イシカワビル
大阪市西区江戸堀1
四ツ橋線「肥後橋」徒歩4分
32.4坪 -
江戸堀グロウスビル
大阪市西区江戸堀1
四ツ橋線「肥後橋」徒歩5分
30.87坪 -
江戸堀センタービル
大阪市西区江戸堀2
四ツ橋線「肥後橋」徒歩7分
31.47坪 -
AMビル
大阪市西区江戸堀2
四ツ橋線「肥後橋」徒歩6分
32.8坪






















