AXIS本町ビル(アクシス本町)

丹羽 美智子ニワミチコ
「AXIS本町(アクシス本町)ビル」は、大阪市西区西本町1丁目にございます賃貸オフィスビル。
地下鉄四つ橋線の「本町駅」から徒歩1分、中央線・御堂筋線の「本町駅」からも徒歩4分と抜群の交通アクセスです。
本町通りに面した角地に建つ最高のロケーション。
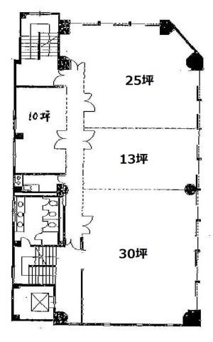
ワンフロア70坪の貸室、使いやすい広さに分割したお部屋もございますが、角ビルですので、どの室内も採光も良好です。
リニューアルも完成しており、きれいなオフィス空間は快適そのもの。
エレベーター・個別空調、機械警備(警備料が別途必要です)と安心・安全な設備が整っています。
西本町1丁目エリアは、住所が“西区”となるだけで、商圏的には御堂筋の本町エリアです。
しかし、“西区”ということで、“中央区”の同規模物件と比較して、賃料相場が割安となっておりますので、住所にこだわりがないのであれば、“西本町エリア”のオフィスビルをおすすめします。
AXIS本町ビル(アクシス本町) 貸室情報
| 種別 | 貸事務所 |
|---|---|
| 物件名 | AXIS本町ビル(アクシス本町) |
| 住所 | 大阪市西区西本町1-2-1 |
| 最寄駅 | 四ツ橋線 『
本町 』
1 分
御堂筋線 『 本町 』 7 分 中央線 『 本町 』 5 分 |
| 構造 | S(鉄骨)造 10階建 /地下 1 階 |
| 築年数 | 1982/1 |
| 設備
|
|
営業マンの一言 四ツ橋本町駅徒歩1分の貸事務所大阪メトロ四ツ橋線 本町駅徒歩1分 御堂筋本町駅・中央線利用可能 本町通り沿いでリニューアル済み 視認性の高い賃貸テナントビルです。 |
|

※取引態様:仲介
※上記、金額は募集条件です。 条件交渉など、詳細についてはお問合せ下さい。
※広告作成中に契約済みの場合はご容赦下さい。
※図面等現況が相違する場合は現況優先にてご容赦下さい。
AXIS本町ビル(アクシス本町)の所在地周辺
物件を再検索する
近隣のよく似た坪数の貸事務所
-
関電不動産西本町ビル
大阪市西区阿波座1
四ツ橋線「本町」徒歩1分
40.07坪 -
カーニープレイス本町ビル
大阪市西区阿波座1
四ツ橋線「本町」徒歩1分
41.14坪 -
CAMCO西本町ビル
大阪市西区阿波座2
四ツ橋線「本町」徒歩5分
42.81坪 -
第三富士ビル
大阪市西区立売堀1
四ツ橋線「本町」徒歩3分
48.0坪 -
立売堀スクエア
大阪市西区立売堀1
四ツ橋線「本町」徒歩4分
48.4坪 -
第二富士ビル
大阪市西区靱本町1
四ツ橋線「本町」徒歩2分
42.0坪 -
コットンニッセイビル
大阪市西区靱本町1
四ツ橋線「本町」徒歩2分
42.0坪 -
ウツボパークビル
大阪市西区靱本町2
四ツ橋線「本町」徒歩6分
40.0坪 -
日機ビル
大阪市西区京町堀2
四ツ橋線「本町」徒歩8分
46.0坪 -
SEKONビル
大阪市西区西本町1
四ツ橋線「本町」徒歩2分
41.14坪



















