アンビション三和Ⅱ

堀中 忠久ホリナカ タダヒサ
「アンビション三和Ⅱビル」は、大阪市天王寺区生玉前町にございます、賃貸事務所ビルです。
ミラーウォールが美しい、地上11階建てオフィス。
大通りより少し入った、静かなロケーションです。
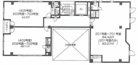
建物中央部にエレベーター・共用廊下があり、前後に貸室が配置された、センターコアタイプ。
トイレ・ミニキッチンの水回りは、室内にあります。
また、棟内に貸し会議室やトランクルーム施設があり、快適なオフィススペースが提供されています。
大阪市営地下鉄谷町線・千日前線の「谷町九丁目駅」より徒歩5分。
近鉄奈良線の「上本町駅」からは徒歩8分の交通アクセスです。
アンビション三和Ⅱ 貸室情報
| 種別 | 事務所・店舗 |
|---|---|
| 物件名 | アンビション三和Ⅱ |
| 住所 | 大阪市天王寺区生玉前町5-31 |
| 最寄駅 | 谷町線 『
谷町九丁目 』
5 分
近鉄奈良線 『 上本町 』 8 分 |
| 構造 | S(鉄骨)造 11階建 |
| 築年数 | 1992/7 【新耐震基準】 |
| 設備
|
|
営業マンの一言 ミラーウォールのきれいなオフィスビルです。上本町・谷9エリアの賃貸事務所 |
|
| 備考 | 貸し会議室 |

※取引態様:仲介
※上記、金額は募集条件です。 条件交渉など、詳細についてはお問合せ下さい。
※広告作成中に契約済みの場合はご容赦下さい。
※図面等現況が相違する場合は現況優先にてご容赦下さい。
アンビション三和Ⅱの所在地周辺
物件を再検索する
近隣のよく似た坪数の貸事務所
-
マックスビル
大阪市天王寺区生玉寺町
谷町線「谷町九丁目」徒歩1分
18.3坪 -
クリスタルタワーSANKYO
大阪市天王寺区生玉寺町
谷町線「谷町九丁目」徒歩1分
17.0坪 -
情報センタービル
大阪市天王寺区生玉寺町
谷町線「谷町九丁目」徒歩1分
15.0坪 -
アクセス谷町ビル
大阪市中央区谷町9
谷町線「谷町九丁目」徒歩3分
18.18坪 -
西川ビル
大阪市中央区上汐2
谷町線「谷町九丁目」徒歩4分
18.75坪 -
中村ビル
大阪市中央区上本町西5
谷町線「谷町九丁目」徒歩3分
16.58坪 -
岸和田第三ビル
大阪市中央区瓦屋町2
谷町線「谷町九丁目」徒歩6分
17.84坪 -
村上ビル
大阪市中央区東平2
谷町線「谷町九丁目」徒歩5分
17.0坪
















