西村ビル

西村ビル 貸室情報
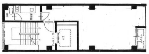
| 階 | 号室 | 坪数 | ㎡数 | 賃料 | 共益費 | 保証金 | |
|---|---|---|---|---|---|---|---|
| 1階 | 7.0坪 | 23.15㎡ | 250,000 円 | 賃料に含む | 2,000,000 円 | ![]() |
|
| B1階 | 9.7坪 | 32.07㎡ | 100,000 円 | 賃料に含む | 6ヶ月 | ![]() |
| 種別 | 貸事務所 |
|---|---|
| 物件名 | 西村ビル |
| 住所 | 大阪市北区曾根崎新地2-6-2 |
| 最寄駅 | 四ツ橋線 『
西梅田 』
1 分
東西線 『 北新地 』 3 分 環状線 『 大阪 』 5 分 |
| 構造 | 鉄骨造 7階建 |
| 築年数 | 1989/4 【新耐震基準】 |
| 設備
|
|
営業マンの一言 大阪メトロ四ツ橋線 「西梅田駅」徒歩1分。JR「大阪駅」からも5分圏内の好立地。ワンフロアワンテナントで1~2名様用のコンパクトオフィス。 |
|

※取引態様:仲介
※上記、金額は募集条件です。 条件交渉など、詳細についてはお問合せ下さい。
※広告作成中に契約済みの場合はご容赦下さい。
※図面等現況が相違する場合は現況優先にてご容赦下さい。
西村ビルの所在地周辺
物件を再検索する
近隣のよく似た坪数の貸事務所
-
ブリーゼタワー
大阪市北区梅田2
四ツ橋線「西梅田」徒歩1分
7.07坪 -
千代田ビル西館
大阪市北区梅田2
四ツ橋線「西梅田」徒歩2分
9.09坪 -
桜橋ホワイトビル
大阪市北区梅田2
四ツ橋線「西梅田」徒歩3分
5.14坪 -
桜橋八千代ビル
大阪市北区梅田2
四ツ橋線「西梅田」徒歩2分
8.9坪 -
千代田ビル西別館
大阪市北区梅田2
四ツ橋線「西梅田」徒歩2分
6.64坪 -
不動ビル
大阪市北区曾根崎新地2
四ツ橋線「西梅田」徒歩3分
7.2坪 -
MF桜橋2ビル
大阪市北区曾根崎新地2
四ツ橋線「西梅田」徒歩3分
9.58坪 -
堂島アバンザビル
大阪市北区堂島1
四ツ橋線「西梅田」徒歩2分
8.46坪 -
中村屋ビルディング
大阪市北区堂島2
四ツ橋線「西梅田」徒歩4分
8.98坪 -
桜橋千代田ビル
大阪市北区堂島2
四ツ橋線「西梅田」徒歩1分
6.66坪





丹羽 美智子













