DoDoビル

DoDoビル 貸室情報
| 種別 | 事務所・店舗 |
|---|---|
| 物件名 | DoDoビル |
| 住所 | 大阪市北区天満2-1-10 |
| 最寄駅 | 谷町線 『
天満橋 』
2 分
東西線 『 大阪天満宮 』 7 分 |
| 構造 | 鉄骨造 8階建 |
| 築年数 | 1990/1 【新耐震基準】 |
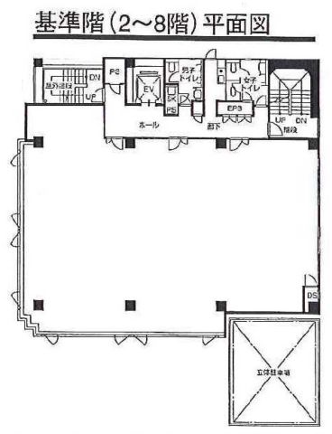
| 設備
|
|
営業マンの一言 大阪メトロ谷町線 天満橋駅徒歩2分 東西線 大阪天満宮駅徒歩7分 天満2丁目に建つ大型ビル。外観良・設備充実 |
|

※取引態様:仲介
※上記、金額は募集条件です。 条件交渉など、詳細についてはお問合せ下さい。
※広告作成中に契約済みの場合はご容赦下さい。
※図面等現況が相違する場合は現況優先にてご容赦下さい。
DoDoビルの所在地周辺
物件を再検索する
近隣のよく似た坪数の貸事務所
-
プレステージ天満
大阪市北区天満1
谷町線「天満橋」徒歩5分
43.56坪 -
天満橋ビル
大阪市北区天満2
谷町線「天満橋」徒歩8分
50.0坪 -
OMMビル(大阪マーチャンダイズ・マート)
大阪市中央区大手前1
谷町線「天満橋」徒歩1分
49.01坪 -
BRAVE天満橋Ⅱ
大阪市中央区北浜東
谷町線「天満橋」徒歩3分
42.08坪 -
BRAVE北浜東(仮称)
大阪市中央区北浜東
谷町線「天満橋」徒歩3分
42.08坪 -
島町第二野村ビル
大阪市中央区島町2
谷町線「天満橋」徒歩6分
41.91坪 -
サンユー天満橋ビル
大阪市中央区谷町1
谷町線「天満橋」徒歩1分
42.57坪




堀中 忠久










