内本町松林ビル

中阪 浩之ナカサカ ヒロユキ
「内本町松林ビル」は、大阪市中央区内本町1丁目にございます、賃貸事務所ビル。
本町通りに面した、小規模ながらシックな外観が重厚さを醸し出す10階建て。
大阪市営地下鉄・谷町線・中央線の「谷町四丁目駅」3番出入口より西へ大通り沿いに徒歩1分。
西隣り1階角にはファミリーマートがあり、示しやすい場所です。
建物内は一転、白を基調とした清潔感あふれる内装。
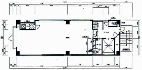
貸室は、約25坪のワンフロア貸し。
独立性・機密性が高い1フロア1テナントオフィスは、音モレなどの心配がなく、来客の多い業種様に最適。
ただし、トイレ・給湯室の水廻り部分も契約面積に含まれますので、実際にオフィスワークに利用できる広さをご確認ください。
内本町松林ビルの実効面積は、約21坪。
いずれの場合も事前に、机などのレイアウト配置をお忘れなく。
内本町松林ビル 貸室情報
| 階 | 号室 | 坪数 | ㎡数 | 賃料 | 共益費 | 敷金 | |
|---|---|---|---|---|---|---|---|
| 2階 | フロア | 26.73坪 | 88.37㎡ | 160,000 円 | 60,000 円 | 600,000 円 | ![]() |
| 6階 | フロア | 26.73坪 | 88.37㎡ | 160,000 円 | 60,000 円 | 600,000 円 | ![]() |
| 種別 | 事務所 |
|---|---|
| 物件名 | 内本町松林ビル |
| 住所 | 大阪市中央区内本町1-2-6 |
| 最寄駅 | 谷町線 『
谷町四丁目 』
1 分
中央線 『 谷町四丁目 』 1 分 |
| 構造 | 鉄筋コンクリート造 10階建 |
| 築年数 | 1992/7 【新耐震基準】 |
| 設備
|
|
営業マンの一言 谷4駅スグのワンフロア貸し!大阪本町通りに面したワンフロアワンテナント賃貸オフィスビル。玄関オートロックでセキュリティ充実しております。 |
|
| 備考 | オートロック |

※取引態様:仲介
※上記、金額は募集条件です。 条件交渉など、詳細についてはお問合せ下さい。
※広告作成中に契約済みの場合はご容赦下さい。
※図面等現況が相違する場合は現況優先にてご容赦下さい。
内本町松林ビルの所在地周辺
物件を再検索する
近隣のよく似た坪数の貸事務所
-
シイナHDビル谷町
大阪市中央区和泉町1
谷町線「谷町四丁目」徒歩2分
26.73坪 -
五苑第二ビル
大阪市中央区内本町1
谷町線「谷町四丁目」徒歩1分
25.0坪 -
内本町第10松屋ビル
大阪市中央区内本町2
谷町線「谷町四丁目」徒歩4分
29.15坪 -
アイエスビル
大阪市中央区谷町2
谷町線「谷町四丁目」徒歩2分
29.66坪 -
GARNET BLDG.OSAKA
大阪市中央区農人橋2
谷町線「谷町四丁目」徒歩3分
27.35坪 -
アインストーンビル
大阪市中央区南新町1
谷町線「谷町四丁目」徒歩4分
26.25坪














