淀屋橋ミッドキューブ(旧:シュナイダーエレクトリック大阪ビルディング)

中阪 浩之ナカサカ ヒロユキ
北浜4丁目の「シュナイダーエレクトリック大阪ビルディング」は地下鉄御堂筋線の「淀屋橋駅」から徒歩2分のハイグレードな賃貸オフィスビルです。京阪電車「淀屋橋」、地下鉄四ツ橋線の「肥後橋」駅からは徒歩4分。大阪のビジネスエリアである「淀屋橋」は梅田はもちろん、新大阪からのアクセスも抜群のため、多くの企業様が本・支店を置く人気のエリアです。
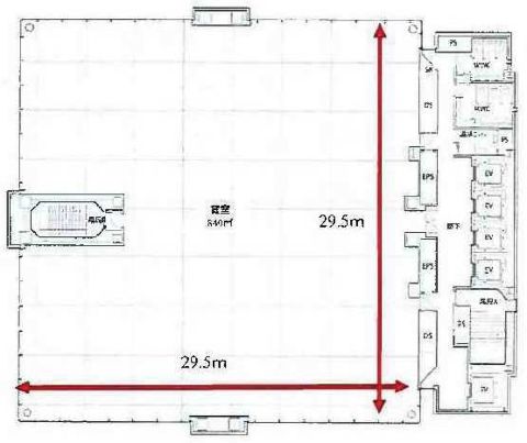
基準階面積は254坪、正方形の貸室形状と無柱空間により、自由なレイアウトが可能です。エレベーターは5基、天井の高さは2.8mと、ゆとりのハイスぺックな貸室になっております。もちろん駐車場もあります。
また、防災機能強化と環境に配慮したビルでもあります。震度6強レベルの地震にも、ビル主要機能を維持できる高い耐震性、非常用発電機による電源の供給、トイレの防災機能として、井戸水による洗浄水を供給、下水管が使用できなくなる事態に備えて予備排水タンクの設置など、災害に強いオフィスとなっております。空調には夏は涼しく、冬暖かい特性を持つ地熱を利用、高効率・長寿命のLED照明を全館に採用、太陽光が入る窓際は照明を落とすなど、省エネルギー対策を強化・推進した設備です。
淀屋橋ミッドキューブ(旧:シュナイダーエレクトリック大阪ビルディング) 貸室情報
| 階 | 号室 | 坪数 | ㎡数 | 賃料 | 共益費 | 保証金 | |
|---|---|---|---|---|---|---|---|
| 1階 | フロア | 118.83坪 | 392.83㎡ | お電話・メールにて お問い合わせください。 | ![]() |
||
| 5階 | フロア | 254.0坪 | 839.67㎡ | お電話・メールにて お問い合わせください。 | ![]() |
||
| 種別 | 貸事務所 |
|---|---|
| 物件名 | 淀屋橋ミッドキューブ(旧:シュナイダーエレクトリック大阪ビルディング) |
| 住所 | 大阪市中央区北浜4-4-9 |
| 最寄駅 | 御堂筋線 『
淀屋橋 』
2 分
四ツ橋線 『 肥後橋 』 3 分 京阪本線 『 淀屋橋 』 4 分 |
| 構造 | 鉄骨鉄筋コンクリート造 10階建 /地下 1 階 |
| 築年数 | 2014/3 【新耐震基準】 |
| 設備
|
|
営業マンの一言 大阪淀屋橋の大型賃貸事務所ビル大阪メトロ御堂筋線 淀屋橋駅徒歩2分 四ツ橋線・京阪本線利用可能 ワンフロア254坪 2014年竣工新耐震基準建物 視認性の高いテナント賃貸オフィスビル |
|
| 備考 | リフレッシュルーム |

※取引態様:仲介
※上記、金額は募集条件です。 条件交渉など、詳細についてはお問合せ下さい。
※広告作成中に契約済みの場合はご容赦下さい。
※図面等現況が相違する場合は現況優先にてご容赦下さい。
淀屋橋ミッドキューブ(旧:シュナイダーエレクトリック大阪ビルディング)の所在地周辺
入居テナント
物件を再検索する
近隣のよく似た坪数の貸事務所
-
新ダイビル
大阪市北区堂島浜1
御堂筋線「淀屋橋」徒歩5分
474.2坪 -
アーバンネット御堂筋ビル
大阪市中央区淡路町4
御堂筋線「淀屋橋」徒歩4分
450.5坪 -
淀屋橋ステーションワン
大阪市中央区北浜3
御堂筋線「淀屋橋」徒歩1分
509.67坪 -
淀屋橋ゲートタワー
大阪市中央区北浜4
御堂筋線「淀屋橋」徒歩1分
1109.47坪 -
淀屋橋フレックスタワー
大阪市中央区高麗橋3
御堂筋線「淀屋橋」徒歩3分
200.87坪 -
淀屋橋センタービル
大阪市中央区高麗橋3
御堂筋線「淀屋橋」徒歩1分
309.56坪 -
武田御堂筋ビル
大阪市中央区道修町4
御堂筋線「淀屋橋」徒歩2分
251.23坪 -
オービック御堂筋ビル
大阪市中央区平野町4
御堂筋線「淀屋橋」徒歩3分
568.05坪





























