日本生命御堂筋ビル

堀中 忠久ホリナカ タダヒサ
「日本生命御堂筋ビル」は、大阪市中央区南船場4丁目にございます、大型賃貸事務所ビル。
大阪のメインストリート“御堂筋”に面し、間口が広く、重厚感ある外観の12階建てオフィス。
石張りのエントランスホール、エレベーター8基、貸し会議室、駐車場等、充実のビルスペックが快適なビジネススペースをサポートしています。
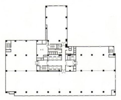
貸室基準階面積は、約350坪。
テナント様のご要望に合わせて柔軟な分割対応も可能ですので、一度お問い合わせくださいませ。
1979年竣工。2007年には共用部リニューアル済。
トイレには、クラシックが流れています。
1階に高級家具のカッシーナ・イクスシー大阪店、12階には貸しホールのハートンホールがございます。
大阪市営地下鉄・御堂筋線・長堀鶴見緑地線の「心斎橋駅」3番出入り口より徒歩2分の交通アクセスです。
日本生命御堂筋ビル 貸室情報
| 種別 | 貸事務所 |
|---|---|
| 物件名 | 日本生命御堂筋ビル |
| 住所 | 大阪市中央区南船場4-2-4 |
| 最寄駅 | 御堂筋線 『
心斎橋 』
3 分
長堀鶴見緑地線 『 心斎橋 』 3 分 四ツ橋線 『 四ツ橋 』 4 分 |
| 構造 | 鉄骨鉄筋コンクリート造 12階建 /地下 2 階 |
| 築年数 | 1979/1 (リニューアル: 済 ) |
| 設備
|
|
営業マンの一言 御堂筋沿い物件、ビル内に貸会議室があります。御堂筋沿いのハイブランド商業エリア、基準階約350坪の格調の有るデザインが魅力のハイグレードオフィスビル |
|

※取引態様:仲介
※上記、金額は募集条件です。 条件交渉など、詳細についてはお問合せ下さい。
※広告作成中に契約済みの場合はご容赦下さい。
※図面等現況が相違する場合は現況優先にてご容赦下さい。
日本生命御堂筋ビルの所在地周辺
入居テナント
物件を再検索する
近隣のよく似た坪数の貸事務所
-
ハニービル
大阪市中央区博労町4
御堂筋線「心斎橋」徒歩5分
97.93坪 -
心斎橋ダイワビル
大阪市中央区東心斎橋1
御堂筋線「心斎橋」徒歩3分
97.0坪 -
いちご心斎橋ビル
大阪市中央区東心斎橋1
御堂筋線「心斎橋」徒歩5分
92.81坪 -
ケーズビル心斎橋
大阪市中央区南船場3
御堂筋線「心斎橋」徒歩2分
90.75坪 -
ゼント心斎橋(旧:ヒューリック心斎橋)
大阪市中央区南船場4
御堂筋線「心斎橋」徒歩2分
91.83坪

























