ACN心斎橋ビル

中阪 浩之ナカサカ ヒロユキ
「ACN心斎橋ビル」は、大阪市中央区南船場4丁目にございます賃貸事務所。
大阪市内を東西にはしる“長堀通り”北側に面した、全面ガラスウォールのスタイリッシュオフィス。
エントランスや共用部は、白とシルバーで統一された洗練空間は、オシャレな街・南船場にふさわしい、ビジネス拠点です。
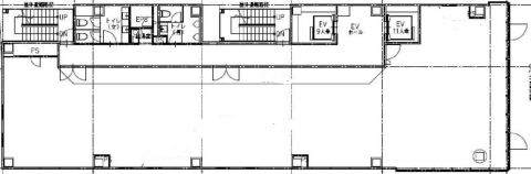
貸室基準階面積は、約68坪。
約20坪の広さに分割対応も可能です。
OAフロアに天高2.8mと、快適なワークスペースが確保されています。
大阪市営地下鉄御堂筋線・長堀鶴見緑地線の「心斎橋駅」より徒歩1分。
四つ橋線の「四ツ橋駅」より徒歩2分の交通至便。
1階にコンビニ、地下ショッピングモール“クリスタ長堀”出入り口もビル前と、視認性の高い賃貸オフィスビルです。
| 種別 | 事務所 |
|---|---|
| 物件名 | ACN心斎橋ビル |
| 住所 | 大阪市中央区南船場4-12-10 |
| 最寄駅 | 御堂筋線 『
心斎橋 』
1 分
四ツ橋線 『 四ツ橋 』 2 分 長堀鶴見緑地線 『 心斎橋 』 1 分 |
| 構造 | 鉄骨造 10階建 |
| 築年数 | 2014/8 【新耐震基準】 |
| 設備
|
|
営業マンの一言 長堀通り沿いのハイグレード賃貸事務所テナントビル大阪メトロ四ツ橋線「四ツ橋」駅徒歩1分 大阪メトロ御堂筋線「心斎橋」駅徒歩4分 長堀鶴見緑地線も利用可能 長堀通り沿いで視認性抜群 希少価値のある築浅賃貸物件 |
|

※取引態様:仲介
※上記、金額は募集条件です。 条件交渉など、詳細についてはお問合せ下さい。
※広告作成中に契約済みの場合はご容赦下さい。
※図面等現況が相違する場合は現況優先にてご容赦下さい。
ACN心斎橋ビルの所在地周辺
入居テナント
物件を再検索する
近隣のよく似た坪数の貸事務所
-
船場心斎橋筋FUKU BLD.
大阪市中央区博労町3
御堂筋線「心斎橋」徒歩5分
53.38坪 -
波多野ビル
大阪市中央区博労町4
御堂筋線「心斎橋」徒歩4分
50.97坪 -
オーツグランドビル
大阪市中央区博労町4
御堂筋線「心斎橋」徒歩3分
53.5坪 -
燕京ビル
大阪市中央区心斎橋筋1
御堂筋線「心斎橋」徒歩1分
50.0坪 -
大京心斎橋第2ビル
大阪市中央区西心斎橋1
御堂筋線「心斎橋」徒歩3分
50.0坪 -
三栄心斎橋ビル
大阪市中央区西心斎橋1
御堂筋線「心斎橋」徒歩2分
51.57坪 -
心斎橋アサノビル
大阪市中央区西心斎橋1
御堂筋線「心斎橋」徒歩2分
59.41坪 -
心斎橋W-Place
大阪市中央区西心斎橋2
御堂筋線「心斎橋」徒歩3分
51.15坪 -
アクロスビル
大阪市中央区心斎橋筋2
御堂筋線「心斎橋」徒歩5分
51.6坪 -
ラースティング心斎橋ビル
大阪市中央区東心斎橋1
御堂筋線「心斎橋」徒歩4分
56.96坪



























