大明ビル(タイメイ) 6階-No.21243
堀中 忠久ホリナカ タダヒサ
大明ビル(タイメイ)の豆知識
「大明ビル(タイメイビル)」は、大阪市中央区平野町4丁目にございます、賃貸事務所ビル。
前面ガラスウォールの6階建て。
リニューアルも完了し、内外観ともにスタイリッシュな美麗ビル。
天井部には竹炭からできた自然建材“カルボボード”を使用。
調湿・有害化学物質除去・臭気吸着・省エネ等の効果があり、安全・快適な室内空気環境を確保しています。
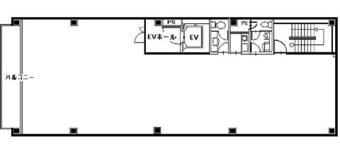
貸室面積は、約48坪のワンフロア貸し。
独立性に優れたワンフロア・ワンテナントオフィスは、来客の多い企業や営業会社にオススメです。
大阪市営地下鉄・御堂筋線の「淀屋橋駅」と「本町駅」から徒歩5分。
四つ橋線の「肥後橋駅」や京阪本線からも徒歩圏内と、マルチアクセスが可能なビジネス拠点。
御堂筋沿線の淀屋橋・本町界隈は、多くの企業が集まる大阪屈指のビジネス街。
銀行・コンビニ・カフェ・飲食店等も近隣にあり、オフィスワーカーをサポートしています。
大明ビル(タイメイ) 基本情報
| 種別 | 貸事務所(物件番号:21243) |
|---|---|
| 物件名 | 大明ビル(タイメイ) |
| 住所 | 大阪市中央区平野町4-6-3 |
| 所在階 | 6階部分フロア号室 その他、貸室 |
| 契約面積 | 43.49 坪・ 143.77 ㎡ |
| 賃料 | 総額
521,880 円 (税抜)・坪単価
12,000 円/坪 (税抜) 総額 574,068 円(税含む) |
| 共益費 | 総額 賃料に含む (税抜)・坪単価 賃料に含む (税抜) 総額 賃料に含む (税含む) |
| 月額合計 | 総額 521,880 円(税抜)・坪単価 12,000 円(税抜) 総額 574,068 円 (税含む) |
| 敷金 | 相談 |
| 解約引 | 無し |
| 最寄駅 |
御堂筋線 『
淀屋橋 』
5 分
御堂筋線 『 本町 』 5 分 四ツ橋線 『 肥後橋 』 6 分 |
| 構造 | S(鉄骨)造 6階建 |
| 築年数 | 2003/1 【新耐震基準】 (リニューアル: 2005/05 ) |
| 設備
|
|
| エレベーター | 1基 |
営業マンの一言 御堂筋ビジネスエリアの美麗ビル全面リニューアル済・淀屋橋のワンフロア貸しオフィス。 |
|
| 備考 | オートロック |

※取引態様:仲介
※上記、金額は募集条件です。 条件交渉など、詳細についてはお問合せ下さい。
※広告作成中に契約済みの場合はご容赦下さい。
※図面等現況が相違する場合は現況優先にてご容赦下さい。
大明ビル(タイメイ)の所在地周辺
大明ビル(タイメイ) その他の部屋情報
物件を再検索する
大明ビル(タイメイ) 関連物件
大明ビル(タイメイ) 近隣のよく似た坪数の貸事務所
-
新ダイビル
大阪市北区堂島浜1
御堂筋線「淀屋橋」徒歩5分
48.4坪 -
大阪三井物産ビル
大阪市北区中之島2
御堂筋線「淀屋橋」徒歩6分
47.98坪 -
PMO EX淀屋橋
大阪市中央区淡路町2
御堂筋線「淀屋橋」徒歩6分
40.99坪 -
京阪神淀屋橋ビル
大阪市中央区今橋4
御堂筋線「淀屋橋」徒歩2分
46.79坪 -
淀屋橋竹村ビル
大阪市中央区今橋4
御堂筋線「淀屋橋」徒歩2分
41.19坪 -
HK今橋ビル
大阪市中央区今橋4
御堂筋線「淀屋橋」徒歩2分
48.48坪 -
国元高麗橋ビル
大阪市中央区高麗橋3
御堂筋線「淀屋橋」徒歩2分
43.91坪 -
大阪朝日生命館
大阪市中央区高麗橋4
御堂筋線「淀屋橋」徒歩1分
46.62坪 -
BizMiix淀屋橋(ビズミックス淀屋橋)
大阪市中央区平野町3
御堂筋線「淀屋橋」徒歩3分
40.26坪




















