ゼント心斎橋(旧:ヒューリック心斎橋) 2階-No.24478
営業スタッフ紹介
丹羽 美智子ニワミチコ
ゼント心斎橋(旧:ヒューリック心斎橋)の豆知識
「御堂筋MIDビル」は、大阪市中央区南船場4丁目にございます賃貸事務所。
大阪のメインストリート“御堂筋”に面した、地下2階・地上12階建てハイグレードなオフィスビル。
凹凸のある特徴的なデザインと、落ち着きある御影石貼り外観、1階にはジュエリーの芝翫香が入る、視認性の高い建物です。
大阪市営地下鉄御堂筋線・長堀鶴見緑地線の「心斎橋駅」3番出入口より徒歩2分の交通至便。
四つ橋線の「四ツ橋駅」からも徒歩5分の好アクセス。
貸会議室のYKP大阪心斎橋カンファレンスセンターやヒューマンアカデミーも入居しています。
基準階面積は、約270坪の大型賃貸ビジネス拠点。
エレベーター5基や高級感ある内装と、快適なオフィススペースが確保されています。
ゼント心斎橋(旧:ヒューリック心斎橋) 基本情報
| 種別 | 貸事務所(物件番号:24478) |
|---|---|
| 物件名 | ゼント心斎橋(旧:ヒューリック心斎橋) |
| 住所 | 大阪市中央区南船場4-3-2 |
| 所在階 | 2階部分南号室 その他、貸室 |
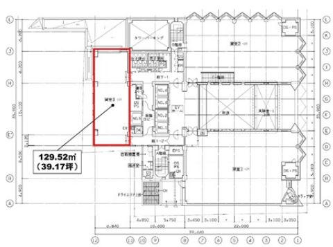
| 契約面積 | 91.83 坪・ 303.57 ㎡ |
| 賃料 | お電話・メールにてお問合下さい。 |
| 共益費 | お電話・メールにてお問合下さい。 |
| 月額合計 | お電話・メールにてお問合下さい。 |
| 敷金 | お電話・メールにてお問合下さい。 |
| 最寄駅 |
御堂筋線 『
心斎橋 』
2 分
長堀鶴見緑地線 『 心斎橋 』 2 分 四ツ橋線 『 四ツ橋 』 5 分 |
| 構造 | 鉄骨鉄筋コンクリート造 12階建 /地下 2 階 |
| 築年数 | 1980/8 |
| 設備
|
|
| エレベーター | 5基 |
営業マンの一言 大阪・御堂筋心斎橋の賃貸事務所ビル心斎橋エリア、御堂筋に面す大型ハイグレードオフィスビル! |
|

※取引態様:仲介
※上記、金額は募集条件です。 条件交渉など、詳細についてはお問合せ下さい。
※広告作成中に契約済みの場合はご容赦下さい。
※図面等現況が相違する場合は現況優先にてご容赦下さい。
ゼント心斎橋(旧:ヒューリック心斎橋)の所在地周辺
ストリートビューを表示▼
ゼント心斎橋(旧:ヒューリック心斎橋) その他の部屋情報
| 階 | 号室 | 坪数 | ㎡数 | 賃料 | 共益費 | 敷金 | |
|---|---|---|---|---|---|---|---|
| 2階 | 北 | 86.55坪 | 286.12㎡ | お電話・メールにて お問い合わせください。 | ![]() |
||
| 2階 | 西 | 39.62坪 | 130.98㎡ | お電話・メールにて お問い合わせください。 | ![]() |
||
















