大阪御堂筋ビル 12階-No.31303
中阪 浩之ナカサカ ヒロユキ
大阪御堂筋ビルの豆知識
「大阪御堂筋ビル」は、大阪市中央区久太郎町4丁目にございます賃貸事務所。
北側に建つ「大阪センタービル」とともにツインタワーとして、本町エリアのランドマークオフィス。
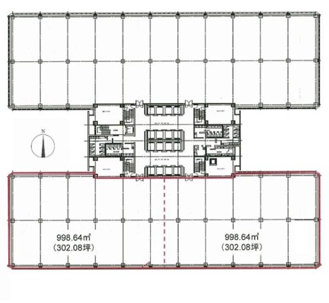
基準階面積約600坪の整形空間は、レイアウト効率抜群。
築後30年以上経ちますが、充実のビルスペックに、行き届いた管理体制。
さらには、建物内に貸し会議室や飲食店等がそろっており、オフィスワーカーを強力にサポート、快適なワークスペースが確保されています。
大阪のメインストリート“御堂筋”に面したロケーションは、最高のステータスを誇るビジネス拠点。
地下鉄御堂筋線・中央線の「本町駅」へ直結したアクセスで、ストレスフリーなフットワークです。
大阪御堂筋ビル 基本情報
| 種別 | 貸事務所(物件番号:31303) |
|---|---|
| 物件名 | 大阪御堂筋ビル |
| 住所 | 大阪市中央区久太郎町4-1-3 |
| 所在階 | 12階部分フロア号室 その他、貸室 |
| 契約面積 | 604.17 坪・ 1,997.26 ㎡ |
| 賃料 | 総額
相談 (税抜)・坪単価
相談 (税抜) 総額 (税含む) |
| 共益費 | 総額 賃料に含む (税抜)・坪単価 賃料に含む (税抜) 総額 賃料に含む (税含む) |
| 月額合計 | 総額 相談(税抜)・坪単価 (税抜) 総額 (税含む) |
| 敷金 | 12ヶ月 |
| 解約引 | 全額返金 |
| 最寄駅 |
御堂筋線 『
本町 』
0 分
四ツ橋線 『 本町 』 5 分 |
| 構造 | 鉄骨鉄筋コンクリート造 13階建 /地下 4 階 |
| 築年数 | 1969/4 (リニューアル: 2021年6月・2024年12月 ) |
| 設備
|
|
| エレベーター | 18基 |
営業マンの一言 大阪本町エリア最大級の賃貸事務所ビル本町駅、直結のランドマークオフィスビル”御堂筋と中央大通りに面した角。立地&規模は文句なしの貸事務所! |
|
| 備考 | 駅直結ビル/貸し会議室/リフレッシュルーム |

※取引態様:仲介
※上記、金額は募集条件です。 条件交渉など、詳細についてはお問合せ下さい。
※広告作成中に契約済みの場合はご容赦下さい。
※図面等現況が相違する場合は現況優先にてご容赦下さい。
大阪御堂筋ビルの所在地周辺
大阪御堂筋ビル その他の部屋情報
入居テナント
物件を再検索する
大阪御堂筋ビル 近隣のよく似た坪数の貸事務所
-
SYNASIA大阪本町ビル(FDS大阪本町)
大阪市中央区本町3
御堂筋線「本町」徒歩1分
236.5坪 -
淡路町ダイビル
大阪市中央区淡路町3
御堂筋線「本町」徒歩5分
226.7坪 -
御堂筋MTRビル
大阪市中央区淡路町3
御堂筋線「本町」徒歩3分
249.8坪 -
銀泉備後町ビル
大阪市中央区瓦町3
御堂筋線「本町」徒歩2分
288.36坪 -
センバフロント
大阪市中央区久太郎町3
御堂筋線「本町」徒歩2分
301.91坪 -
せんば心斎橋筋店舗(仮称)
大阪市中央区久太郎町3
御堂筋線「本町」徒歩2分
346.21坪 -
大阪センタービル
大阪市中央区久太郎町4
御堂筋線「本町」徒歩0分
301.03坪 -
EDGE備後町
大阪市中央区備後町3
御堂筋線「本町」徒歩2分
200.17坪 -
PMO EX 本町(PREMIUM MIDSIZE OFFICE)
大阪市中央区本町3
御堂筋線「本町」徒歩3分
232.95坪 -
Osaka Metro本町ビル
大阪市中央区本町3
御堂筋線「本町」徒歩0分
593.35坪


































