御堂筋グランドビル 14階-No.31950
営業スタッフ紹介
堀中 忠久ホリナカ タダヒサ
御堂筋グランドビルの豆知識
「御堂筋グランドビル」は、大阪市中央区難波2丁目にございます、賃貸事務所・テナントビル。
大阪のメインストリート“御堂筋”と“千日前通”の北西角地に位置する、地下1階地上15階建て。
洗練されたスタイリッシュなフォルムが、ステイタスの高さを象徴しています。
1階にはあおぞら銀行が、地下にはスターバックスなどの店舗が入っており、地下鉄・地下街なんばウォークへと直結した、フットワークの良い立地。
御堂筋線・千日前線の「なんば駅」へは、徒歩1分。JRや、南海線の「難波駅」も徒歩圏内と便利な交通アクセスです。
セントラル空調、機械警備セキュリティ、エレベーター5基+荷物用1基、OAフロア、78台収容の立体駐車場と、充実のビルスペック。
セントラル空調のコアタイムは、平日9時~18時。この時間内の空調費は、共益費に含まれており、時間外は別途費用が掛かります。
貸室面積は、ワンフロア約350坪。
約45坪~90坪の分割プランもございます。
大阪ミナミの一等地という場所柄、来店型オフィスも可能。メインエントランスも日曜・祝日オープン対応です。
御堂筋グランドビル 基本情報
| 種別 | 貸事務所(物件番号:31950) |
|---|---|
| 物件名 | 御堂筋グランドビル |
| 住所 | 大阪市中央区難波2-2-3 |
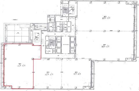
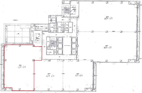
| 所在階 | 14階部分号室 |
| 契約面積 | 75.98 坪・ 251.18 ㎡ |
| 賃料 | お電話・メールにてお問合下さい。 |
| 共益費 | お電話・メールにてお問合下さい。 |
| 月額合計 | お電話・メールにてお問合下さい。 |
| 敷金 | お電話・メールにてお問合下さい。 |
| 最寄駅 |
御堂筋線 『
なんば 』
0 分
JR関西本線 『 難波 』 3 分 四ツ橋線 『 なんば 』 2 分 |
| 構造 | 鉄骨鉄筋コンクリート造 15階建 /地下 1 階 |
| 築年数 | 1989/1 【新耐震基準】 |
| 設備
|
|
| エレベーター | 7基 |
営業マンの一言 御堂筋と千日前通りに面する角’難波を代表するシンボリックビル大阪メトロ御堂筋線 なんば駅徒歩1分 JR線・近鉄線・南海線利用可能 御堂筋沿い 地下街・駅直結 視認性抜群のランドマーク賃貸オフィスビル |
|
| 備考 | 駅直結ビル |

※取引態様:仲介
※上記、金額は募集条件です。 条件交渉など、詳細についてはお問合せ下さい。
※広告作成中に契約済みの場合はご容赦下さい。
※図面等現況が相違する場合は現況優先にてご容赦下さい。
御堂筋グランドビルの所在地周辺
ストリートビューを表示▼




















