プロスパー平野町ビル 6階-No.32828
中阪 浩之ナカサカ ヒロユキ
プロスパー平野町ビル 基本情報
| 種別 | 貸事務所(物件番号:32828) |
|---|---|
| 物件名 | プロスパー平野町ビル |
| 住所 | 大阪市中央区平野町3-1-8 |
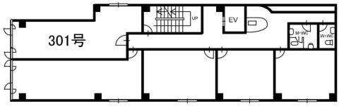
| 所在階 | 6階部分1号室 その他、貸室 |
| 契約面積 | 11.98 坪・ 39.61 ㎡ |
| 賃料 | 総額
143,760 円 (税抜)・坪単価
12,000 円/坪 (税抜) 総額 158,136 円(税含む) |
| 共益費 | 総額 43,128 円 (税抜)・坪単価 3,600 円/坪 (税抜) 総額 47,441 円 (税含む) |
| 月額合計 | 総額 186,888 円(税抜)・坪単価 15,600 円(税抜) 総額 205,577 円 (税含む) |
| 保証金 | 1,681,992 円 |
| 解約引 | 747,552円 |
| 費用備考 | 賃貸保証加入要 |
| 最寄駅 |
御堂筋線 『
淀屋橋 』
5 分
堺筋線 『 北浜 』 7 分 御堂筋線 『 本町 』 7 分 |
| 構造 | S(鉄骨)造 9階建 /地下 1 階 |
| 築年数 | 1989/1 【新耐震基準】 (リニューアル: 済 ) |
| 設備
|
|
| エレベーター | 1基 |
営業マンの一言 大阪ビジネス街のスモール賃貸オフィス。大阪メトロ御堂筋線 淀屋橋駅徒歩5分 堺筋線・御堂筋本町駅も利用可能 淀屋橋エリアのコンパクトな賃貸事務所ビル。駐車場完備。 |
|
| 備考 | 貸し会議室/リフレッシュルーム/オートロック |

※取引態様:仲介
※上記、金額は募集条件です。 条件交渉など、詳細についてはお問合せ下さい。
※広告作成中に契約済みの場合はご容赦下さい。
※図面等現況が相違する場合は現況優先にてご容赦下さい。
プロスパー平野町ビルの所在地周辺
プロスパー平野町ビル その他の部屋情報
| 階 | 号室 | 坪数 | ㎡数 | 賃料 | 共益費 | 保証金 | |
|---|---|---|---|---|---|---|---|
| 3階 | 5 | 6.8坪 | 22.48㎡ | 59,840 円 | 24,480 円 | 758,880 円 | ![]() |
| 5階 | 5 | 6.8坪 | 22.48㎡ | 61,200 円 | 24,480 円 | 771,120 円 | ![]() |
| 7階 | 1 | 23.79坪 | 78.65㎡ | 285,500 円 | 85,650 円 | 3,340,349 円 | ![]() |
物件を再検索する
プロスパー平野町ビル 関連物件
プロスパー平野町ビル 近隣のよく似た坪数の貸事務所
-
関電不動産梅田新道ビル
大阪市北区堂島1
御堂筋線「淀屋橋」徒歩4分
12.09坪 -
絹笠新興ビル
大阪市北区西天満2
御堂筋線「淀屋橋」徒歩6分
14.74坪 -
千都ビル
大阪市北区西天満2
御堂筋線「淀屋橋」徒歩7分
12.74坪 -
堂島ビルヂング
大阪市北区西天満2
御堂筋線「淀屋橋」徒歩5分
10.19坪 -
BB第一ビル
大阪市中央区淡路町4
御堂筋線「淀屋橋」徒歩5分
12.87坪 -
淀屋橋竹村ビル
大阪市中央区今橋4
御堂筋線「淀屋橋」徒歩2分
14.18坪 -
パラード北浜
大阪市中央区北浜2
御堂筋線「淀屋橋」徒歩3分
13.71坪 -
淀屋橋ホワイトビル
大阪市中央区北浜3
御堂筋線「淀屋橋」徒歩1分
11.58坪 -
松栄ビル(淀屋橋)
大阪市中央区北浜3
御堂筋線「淀屋橋」徒歩0.2分
14.67坪 -
高麗橋ビル(高麗橋4丁目)
大阪市中央区高麗橋4
御堂筋線「淀屋橋」徒歩2分
10.5坪





























