タイムスビル 5階-No.33209
中阪 浩之ナカサカ ヒロユキ
タイムスビルの豆知識
「タイムスビル」は、大阪市中央区南新町1丁目にございます、賃貸事務所・テナントビル。
大阪市営地下鉄・谷町線・中央線の「谷町四丁目駅」より徒歩2分と、便利な交通アクセス。
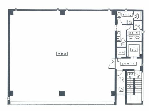
ビル前の道路は歩道もあり、間口の広い南向きの建物ですので、貸室内の採光は抜群。
さらに、広さは約55坪と、ゆとりのワンフロア貸しです。
独立性の高いワンフロア・ワンテナントは、他の音モレ等の心配もないので、来店型オフィスに最適。
また、「タイムスビル」は広さもありますので、ショールーム兼オフィス使用にもオススメです。
駅からも近く、明るく、快適なビジネス空間は、企業のイメージアップにも役立ちます。
谷4周辺は、官公庁機関の多く集まるエリアです。
一方、大阪城公園をはじめとした緑豊かな環境から、居住用としても人気の街です。
タイムスビル 基本情報
| 種別 | 貸事務所(物件番号:33209) |
|---|---|
| 物件名 | タイムスビル |
| 住所 | 大阪市中央区南新町1-1-2 |
| 所在階 | 5階部分フロア号室 その他、貸室 |
| 契約面積 | 54.45 坪・ 180.00 ㎡ |
| 賃料 | お電話・メールにてお問合下さい。 |
| 共益費 | お電話・メールにてお問合下さい。 |
| 月額合計 | お電話・メールにてお問合下さい。 |
| 敷金 | お電話・メールにてお問合下さい。 |
| 費用備考 | その他諸費用あり |
| 最寄駅 |
谷町線 『
谷町四丁目 』
3 分
中央線 『 谷町四丁目 』 3 分 |
| 構造 | 鉄骨鉄筋コンクリート造 9階建 /地下 1 階 |
| 築年数 | 1990/3 【新耐震基準】 |
| 設備
|
|
| エレベーター | 1基 |
営業マンの一言 フリーレント等ご相談OK谷町四丁目エリア、全室、南向きの明るいお部屋。 |
|

※取引態様:仲介
※上記、金額は募集条件です。 条件交渉など、詳細についてはお問合せ下さい。
※広告作成中に契約済みの場合はご容赦下さい。
※図面等現況が相違する場合は現況優先にてご容赦下さい。
タイムスビルの所在地周辺
タイムスビル その他の部屋情報
物件を再検索する
タイムスビル 近隣のよく似た坪数の貸事務所
-
谷四スクエア
大阪市中央区内本町1
谷町線「谷町四丁目」徒歩1分
56.05坪 -
assess大手通ビル
大阪市中央区大手通2
谷町線「谷町四丁目」徒歩9分
50.9坪 -
船岡ビル
大阪市中央区常盤町1
谷町線「谷町四丁目」徒歩2分
60.0坪 -
アドバンスビル本町(大松ビル)
大阪市中央区常盤町2
谷町線「谷町四丁目」徒歩4分
51.41坪 -
リーガル大阪ビル
大阪市中央区徳井町2
谷町線「谷町四丁目」徒歩5分
51.06坪 -
大平第2ビル
大阪市中央区南新町2
谷町線「谷町四丁目」徒歩5分
50.0坪














