マルサンビル 4階-No.33573
丹羽 美智子ニワミチコ
マルサンビルの豆知識
「マルサンビル」は、大阪市北区天神橋2丁目にございます、賃貸事務所・テナントビルです。
国道1号線から北へ天神橋筋商店街に入ってスグ。賑やかな商店街のなかでも、もっとも人通りの多い場所。
大阪市営地下鉄・谷町線・堺筋線の「南森町駅」より徒歩1分。
JR東西線の「大阪天満宮駅」からも徒歩3分の交通至便。
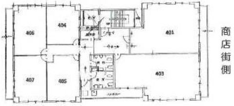
基準階面積は約70坪。
10~20坪前後の小さなお部屋に区画割していますので、使い勝手も◎。
使用用途も、オフィスはもちろん、店舗使用も可能となっております。是非、業種等ご相談ください。
“天神橋筋商店街”は、南北約2.6㎞に約600ものお店がならぶ、日本一長いアーケード商店街。
安くて、美味しいお店がたくさんありますが、見ているだけでも十分楽しめます。
大阪天満宮さんもあり、大阪らしさが満喫できる街です。
マルサンビル 基本情報
| 種別 | 貸事務所(物件番号:33573) |
|---|---|
| 物件名 | マルサンビル |
| 住所 | 大阪市北区天神橋2-北-2-26 |
| 所在階 | 4階部分7号室 その他、貸室 |
| 契約面積 | 7.94 坪・ 26.25 ㎡ |
| 賃料 | 総額
77,000 円 (税抜)・坪単価
9,698 円/坪 (税抜) 総額 84,700 円(税含む) |
| 共益費 | 総額 賃料に含む (税抜)・坪単価 賃料に含む (税抜) 総額 賃料に含む (税含む) |
| 月額合計 | 総額 77,000 円(税抜)・坪単価 9,698 円(税抜) 総額 84,700 円 (税含む) |
| 敷金 | 無し |
| 礼金 | 254,100円(税含む) |
| 費用備考 | 賃貸保証加入要 |
| 最寄駅 |
堺筋線 『
南森町 』
1 分
谷町線 『 南森町 』 1 分 東西線 『 大阪天満宮 』 3 分 |
| 構造 | S(鉄骨)造 9階建 /地下 1 階 |
| 築年数 | 1989/3 【新耐震基準】 |
| 設備
|
|
| エレベーター | 1基 |
営業マンの一言 店舗使用も可。業種はご相談ください。天神橋筋商店街に面したオフィス・テナントビル。 |
|

※取引態様:仲介
※上記、金額は募集条件です。 条件交渉など、詳細についてはお問合せ下さい。
※広告作成中に契約済みの場合はご容赦下さい。
※図面等現況が相違する場合は現況優先にてご容赦下さい。
マルサンビルの所在地周辺
マルサンビル その他の部屋情報
物件を再検索する
マルサンビル 近隣のよく似た坪数の貸事務所
-
南森町八千代ビル
大阪市北区南森町2
堺筋線「南森町」徒歩2分
9.19坪 -
小山ビル
大阪市北区南森町2
堺筋線「南森町」徒歩3分
8.16坪 -
グラン・ビルド渡辺
大阪市北区天神橋1
堺筋線「南森町」徒歩4分
6.84坪 -
大証ビル
大阪市北区天神橋1
堺筋線「南森町」徒歩2分
8.4坪 -
千代田第二ビル
大阪市北区天神橋2
堺筋線「南森町」徒歩2分
8.14坪 -
千代田第一ビル
大阪市北区天神橋2
堺筋線「南森町」徒歩1分
6.12坪 -
第五新興ビル(第5新興ビル)
大阪市北区天神橋2
堺筋線「南森町」徒歩4分
8.98坪 -
若杉グランドビル本館
大阪市北区天神橋2
堺筋線「南森町」徒歩1分
9.6坪 -
八千代ビル東館
大阪市北区天神橋2
堺筋線「南森町」徒歩1分
8.99坪 -
サンプラザ南森町
大阪市北区天神橋2
堺筋線「南森町」徒歩1分
7.01坪



















