永楽ニッセイビル 2階-No.35642
営業スタッフ紹介
中阪 浩之ナカサカ ヒロユキ
永楽ニッセイビルの豆知識
「永楽ニッセイビル」は、大阪市北区野崎町にございます賃貸事務所。
大通りに面した、ストレートラインがモダンかつ落ち着いた雰囲気の地下1階・地上10階建て、オフィスビル。
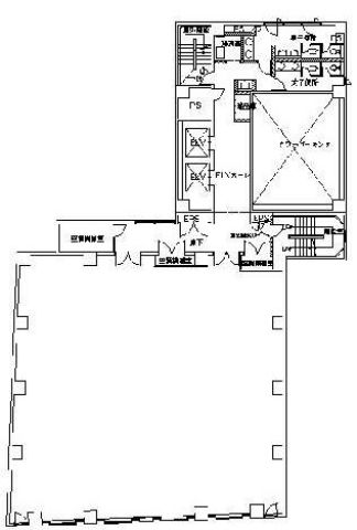
基準階面積は約90坪。
2分割のフロアプランもございますので、ご相談ください。
最寄りは、大阪市営地下鉄堺筋線の「扇町駅」より徒歩5分。
谷町線の「東梅田駅」へも徒歩7分の交通アクセス。
大阪ビジネス街・東梅田エリアでありながら、扇町公園など緑も多く、環境の良さも魅力的です。
永楽ニッセイビル 基本情報
| 種別 | 貸事務所(物件番号:35642) |
|---|---|
| 物件名 | 永楽ニッセイビル |
| 住所 | 大阪市北区野崎町9-8 |
| 所在階 | 2階部分号室 その他、貸室 |
| 契約面積 | 61.0 坪・ 201.66 ㎡ |
| 賃料 | お電話・メールにてお問合下さい。 |
| 共益費 | お電話・メールにてお問合下さい。 |
| 月額合計 | お電話・メールにてお問合下さい。 |
| 敷金 | お電話・メールにてお問合下さい。 |
| 最寄駅 |
堺筋線 『
扇町 』
5 分
谷町線 『 東梅田 』 7 分 |
| 構造 | 鉄骨鉄筋コンクリート造 10階建 /地下 1 階 |
| 築年数 | 1989/1 【新耐震基準】 |
| 設備
|
|
| エレベーター | 2基 |
営業マンの一言 東梅田エリアの賃貸事務所ビル大通り沿い面した大阪賃貸オフィス |
|

※取引態様:仲介
※上記、金額は募集条件です。 条件交渉など、詳細についてはお問合せ下さい。
※広告作成中に契約済みの場合はご容赦下さい。
※図面等現況が相違する場合は現況優先にてご容赦下さい。
永楽ニッセイビルの所在地周辺
ストリートビューを表示▼










