グリフォンビル 7階-No.37474
グリフォンビル 基本情報
| 種別 | 貸事務所(物件番号:37474) |
|---|---|
| 物件名 | グリフォンビル |
| 住所 | 大阪市北区天神橋4-7-11 |
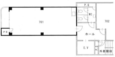
| 所在階 | 7階部分1号室 |
| 契約面積 | 14.79 坪・ 48.90 ㎡ |
| 賃料 | お電話・メールにてお問合下さい。 |
| 共益費 | お電話・メールにてお問合下さい。 |
| 月額合計 | お電話・メールにてお問合下さい。 |
| 敷金 | お電話・メールにてお問合下さい。 |
| 最寄駅 |
堺筋線 『
扇町 』
1 分
環状線 『 天満 』 3 分 |
| 構造 | S(鉄骨)造 7階建 |
| 築年数 | 1988/7 【新耐震基準】 |
| 設備
|
|
| エレベーター | 1基 |
営業マンの一言 天神橋筋面す 諸条件相談OK |
|

※取引態様:仲介
※上記、金額は募集条件です。 条件交渉など、詳細についてはお問合せ下さい。
※広告作成中に契約済みの場合はご容赦下さい。
※図面等現況が相違する場合は現況優先にてご容赦下さい。
グリフォンビルの所在地周辺
ストリートビューを表示▼




中阪 浩之






