パラード北浜 7階-No.43438
中阪 浩之ナカサカ ヒロユキ
パラード北浜の豆知識
「パラード北浜ビル」は、大阪市中央区北浜2丁目にございます、賃貸オフィス・マンション。
キッチン・トイレ・バスルームのある貸室ですので、居住用にはもちろん、会社事務所として、また水廻りがございますので美容系の店舗として、さらにはオフィス兼自宅とのSOHOとして、入居者様の希望により用途の広がる賃貸物件です。
広さは約33㎡(約10坪)~45㎡と、かなり広めの1Kタイプ。
パーテーションを上手く利用すれば、使い勝手の良いオフィス・居住空間になること間違いナシです。
場所もオフィス街のど真ん中・北浜と、好ロケーション。
金融の街として知られていますが、最近では日本一高い分譲マンション(2014年4月現在)“ザ・キタハマタワー”ができ、環境の良さから人気のエリアとなっています。
大阪市営地下鉄・堺筋線または京阪本線の「北浜駅」から徒歩2分、大阪の大動脈・御堂筋線の「淀屋橋駅」からも徒歩3分の交通アクセスは、フットーワークの良いオフィス拠点として、ビジネス効率を促進し、また店舗としては集客率UPにつながります。
パラード北浜 基本情報
| 種別 | 事務所・店舗(物件番号:43438) |
|---|---|
| 物件名 | パラード北浜 |
| 住所 | 大阪市中央区北浜2-5-17 |
| 所在階 | 7階部分1E号室 |
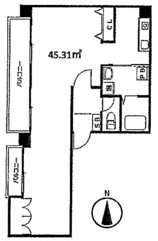
| 契約面積 | 13.71 坪・ 45.33 ㎡ |
| 賃料 | 総額
145,000 円 (税抜)・坪単価
10,576 円/坪 (税抜) 総額 159,500 円(税含む) |
| 共益費 | 総額 10,000 円 (税抜)・坪単価 729 円/坪 (税抜) 総額 11,000 円 (税含む) |
| 月額合計 | 総額 155,000 円(税抜)・坪単価 11,306 円(税抜) 総額 170,500 円 (税含む) |
| 敷金 | 無し |
| 礼金 | 319,000円(税含む) |
| 費用備考 | 賃貸保証加入要/火災保険加入要/その他諸費用あり |
| 最寄駅 |
御堂筋線 『
淀屋橋 』
3 分
堺筋線 『 北浜 』 2 分 京阪本線 『 北浜 』 2 分 |
| 構造 | 鉄筋コンクリート造 7階建 |
| 築年数 | 2004/1 【新耐震基準】 |
| 設備
|
|
| エレベーター | 1基 |
営業マンの一言 大阪・北浜の賃貸事務所・SOHOテナントビル。大阪メトロ御堂筋線 淀屋橋駅徒歩3分 堺筋線・京阪線利用可能 SOHOタイプの事務所、店舗、居住用・デザイン関係や夜遅くまで営業される会社に最適です。 |
|

※取引態様:仲介
※上記、金額は募集条件です。 条件交渉など、詳細についてはお問合せ下さい。
※広告作成中に契約済みの場合はご容赦下さい。
※図面等現況が相違する場合は現況優先にてご容赦下さい。
パラード北浜の所在地周辺
入居テナント
物件を再検索する
パラード北浜 近隣のよく似た坪数の貸事務所
-
関電不動産梅田新道ビル
大阪市北区堂島1
御堂筋線「淀屋橋」徒歩4分
12.09坪 -
絹笠新興ビル
大阪市北区西天満2
御堂筋線「淀屋橋」徒歩6分
14.74坪 -
堂島ビルヂング
大阪市北区西天満2
御堂筋線「淀屋橋」徒歩5分
14.72坪 -
サンシステム北新地ビル
大阪市北区西天満2
御堂筋線「淀屋橋」徒歩5分
10.66坪 -
大江ビルヂング
大阪市北区西天満2
御堂筋線「淀屋橋」徒歩5分
10.6坪 -
幸田第2ビル
大阪市北区西天満2
御堂筋線「淀屋橋」徒歩5分
14.52坪 -
BB第一ビル
大阪市中央区淡路町4
御堂筋線「淀屋橋」徒歩5分
12.87坪 -
淀屋橋竹村ビル
大阪市中央区今橋4
御堂筋線「淀屋橋」徒歩2分
14.18坪 -
山岡淀屋橋ビル
大阪市中央区北浜3
御堂筋線「淀屋橋」徒歩1分
14.5坪 -
松栄ビル(淀屋橋)
大阪市中央区北浜3
御堂筋線「淀屋橋」徒歩0.2分
14.67坪


















