マエダビル本社ビル 1階-No.44003
丹羽 美智子ニワミチコ
マエダビル本社ビルの豆知識
「マエダビル本社ビル」は、大阪市中央区北久宝寺町2丁目にございます賃貸オフィスビル。
地下鉄堺筋線・中央線の「堺筋本町駅」から
徒歩3分、堺筋に面した抜群のロケーションです。
10坪から42坪とバリエーション豊かな面積の貸室そろっていますので、テナント様に最適な広さがきっと見つかるハズ。
管理人さんも常駐していますので、安心・安全・快適なオフィス。
周辺には、“大阪市中央区役所”・“産業創造館”さんなど、ビジネスをサポートする体制も万全です。
また、“船場センタービル”をはじめとして、“プロルート”さん、“ファンビ寺内”さんなど、卸商社さんも多く集まっており、商都・大阪らしさがあふれる、活気ある街なみです。
“船場センタービル”は、御堂筋から堺筋まで、東西約1000mの全天候型ショッピングモール。繊維の卸問屋さんをはじめ、メンズ・レディースのアパレル店・ブランドショップ、輸入家具店・雑貨店に、飲食店舗が約800店並んでいます。
マエダビル本社ビル 基本情報
| 種別 | 事務所・店舗(物件番号:44003) |
|---|---|
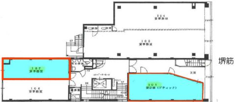
| 物件名 | マエダビル本社ビル
101号(路面店舗・15坪)+107号(1階奥事務所・10坪)のセット貸し。飲食不可です。 |
| 住所 | 大阪市中央区北久宝寺町2-2-13 |
| 所在階 | 1階部分1+7号室 その他、貸室 |
| 契約面積 | 25.0 坪・ 82.65 ㎡ |
| 賃料 | 総額
298,500 円 (税抜)・坪単価
11,940 円/坪 (税抜) 総額 328,350 円(税含む) |
| 共益費 | 総額 42,000 円 (税抜)・坪単価 1,680 円/坪 (税抜) 総額 46,200 円 (税含む) |
| 月額合計 | 総額 340,500 円(税抜)・坪単価 13,620 円(税抜) 総額 374,550 円 (税含む) |
| 敷金 | 3,400,000 円 |
| 解約引 | 1,980,000円 |
| 最寄駅 |
堺筋線 『
堺筋本町 』
3 分
堺筋線 『 長堀橋 』 5 分 御堂筋線 『 本町 』 5 分 |
| 構造 | 鉄骨鉄筋コンクリート造 9階建 /地下 1 階 |
| 築年数 | 1979/1 (リニューアル: 1993/8 ) |
| 設備
|
|
| エレベーター | 1基 |
営業マンの一言 1階エントランスホールと各階トイレのリニューアル完了。堺筋本町駅&長堀橋駅が利用できます。堺筋に面した賃貸事務所ビル、10坪~40坪まで広さのバリエーション豊富です。 |
|

※取引態様:仲介
※上記、金額は募集条件です。 条件交渉など、詳細についてはお問合せ下さい。
※広告作成中に契約済みの場合はご容赦下さい。
※図面等現況が相違する場合は現況優先にてご容赦下さい。
マエダビル本社ビルの所在地周辺
マエダビル本社ビル その他の部屋情報
入居テナント
物件を再検索する
マエダビル本社ビル 関連物件
マエダビル本社ビル 近隣のよく似た坪数の貸事務所
-
ハウザー堺筋本町駅前ビル
大阪市中央区安土町2
堺筋線「堺筋本町」徒歩0.5分
30.0坪 -
瓦町恒和ビル
大阪市中央区瓦町1
堺筋線「堺筋本町」徒歩3分
29.43坪 -
いずみやビル
大阪市中央区瓦町2
堺筋線「堺筋本町」徒歩4分
29.34坪 -
ネオフィス堺筋本町
大阪市中央区北久宝寺町1
堺筋線「堺筋本町」徒歩3分
27.0坪 -
三星RSビル
大阪市中央区久太郎町1
堺筋線「堺筋本町」徒歩4分
28.5坪 -
JKビル
大阪市中央区久太郎町1
堺筋線「堺筋本町」徒歩1分
27.17坪 -
NTPR堺筋本町ビル
大阪市中央区久太郎町1
堺筋線「堺筋本町」徒歩3分
26.8坪 -
西野金陵ビル西館
大阪市中央区久太郎町1
堺筋線「堺筋本町」徒歩2分
27.88坪 -
コーシンビル
大阪市中央区久太郎町1
堺筋線「堺筋本町」徒歩1分
27.0坪 -
LUCID SQUARE SEMBA(ルーシッドスクエアセンバ)
大阪市中央区久太郎町1
堺筋線「堺筋本町」徒歩1分
28.46坪



















