プラザ梅新ビル 8階-No.47666
堀中 忠久ホリナカ タダヒサ
プラザ梅新ビルの豆知識
「プラザ梅新ビル」は、大阪市北区西天満4丁目にございます会員制のホテルが入居しているビル。
御堂筋と新御堂筋、国道1・2号線に囲まれたデルタ地帯に位置する赤茶色したレンガ色の重厚感ある外観。隣には29階建てのフェニックスタワーがありますので遠くからでもよく目立つ建物です。
交通アクセスは、JR東西線の「北新地駅」から徒歩4分、「大阪駅」から徒歩12分、地下鉄・私鉄の各「梅田駅」からも10分前後と好立地。
平成23年にリニューアル完了し、広々としたロビーエントランスは、ビジネスの商談スペースとして、また来客の方の待合スペースと利用できます。
「プラザ梅新ビル」の何よりの特徴は、“フロントサービス”。24時間常駐のフロントでは、郵便・荷物の預かりから、来客対応などをしてくれます。個人さまでお仕事されている方には、秘書的なサービスです。また、防犯やセキュリティ上も、非常に安心です。
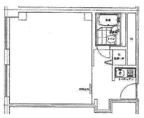
お部屋のタイプは、シンプルなオフィスタイプとバス・トイレのあるホテルタイプがございます。
いずれも、ホテルクラスのサービスと安心がある、快適なビジネスライクが整っています。
プラザ梅新ビル 基本情報
| 種別 | 事務所・店舗(物件番号:47666) |
|---|---|
| 物件名 | プラザ梅新ビル |
| 住所 | 大阪市北区西天満4-15-18 |
| 所在階 | 8階部分5号室 その他、貸室 |
| 契約面積 | 5.09 坪・ 16.83 ㎡ |
| 賃料 | 総額
66,170 円 (税抜)・坪単価
13,000 円/坪 (税抜) 総額 72,787 円(税含む) |
| 共益費 | 総額 15,270 円 (税抜)・坪単価 3,000 円/坪 (税抜) 総額 16,797 円 (税含む) |
| 月額合計 | 総額 81,440 円(税抜)・坪単価 16,000 円(税抜) 総額 89,584 円 (税含む) |
| 敷金 | 1ヶ月 |
| 礼金 | 3ヶ月 |
| 費用備考 | 賃貸保証加入要/その他諸費用あり |
| 最寄駅 |
谷町線 『
東梅田 』
5 分
御堂筋線 『 淀屋橋 』 8 分 東西線 『 北新地 』 4 分 |
| 構造 | 鉄骨鉄筋コンクリート造 15階建 /地下 1 階 |
| 築年数 | 1977/12 |
| 設備
|
|
| エレベーター | 2基 |
営業マンの一言 梅新ハイクオリティ賃貸テナントビル。大阪メトロ谷町線 東梅田駅徒歩5分 大阪メトロ御堂筋線 淀屋橋駅、東西線北新地駅利用可能 大通りに面した三面道路、全室彩光良好!梅田のフロントサービス付きオフィスです。 |
|
| 備考 | 日祝、来店可能サービス型オフィス |

※取引態様:仲介
※上記、金額は募集条件です。 条件交渉など、詳細についてはお問合せ下さい。
※広告作成中に契約済みの場合はご容赦下さい。
※図面等現況が相違する場合は現況優先にてご容赦下さい。
プラザ梅新ビルの所在地周辺
プラザ梅新ビル その他の部屋情報
物件を再検索する
プラザ梅新ビル 近隣のよく似た坪数の貸事務所
-
AXIS UMEDA BLD(アクシス梅田)
大阪市北区神山町
谷町線「東梅田」徒歩4分
7.17坪 -
グラン・ビルド金本
大阪市北区神山町
谷町線「東梅田」徒歩6分
9.52坪 -
祥慶ビル
大阪市北区太融寺町
谷町線「東梅田」徒歩5分
10.0坪 -
阪急東ビル
大阪市北区堂山町
谷町線「東梅田」徒歩3分
9.29坪 -
梅田シティビラアクトⅢ
大阪市北区堂山町
谷町線「東梅田」徒歩4分
7.82坪 -
東梅田八千代ビル
大阪市北区中崎西2
谷町線「東梅田」徒歩4分
8.35坪 -
HAYAKAWA BLD (旧 千寿)
大阪市北区西天満4
谷町線「東梅田」徒歩8分
6.95坪 -
重光ビル
大阪市北区西天満4
谷町線「東梅田」徒歩7分
9.66坪 -
ユーアイビル (西天満6丁目)
大阪市北区西天満6
谷町線「東梅田」徒歩6分
6.78坪 -
トレックノース梅田ビル
大阪市北区野崎町
谷町線「東梅田」徒歩5分
9.8坪

























