クリスタルタワー 6階-No.47837
クリスタルタワー 基本情報
| 種別 | 貸事務所(物件番号:47837) |
|---|---|
| 物件名 | クリスタルタワー
城見ランドマークタワー。貸会議室ございます。 |
| 住所 | 大阪市中央区城見1-2-27 |
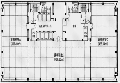
| 所在階 | 6階部分号室 |
| 契約面積 | 132.84 坪・ 439.14 ㎡ |
| 最寄駅 |
長堀鶴見緑地線 『
大阪ビジネスパーク 』
1 分
環状線 『 大阪城公園 』 3 分 |
| 構造 | 鉄骨鉄筋コンクリート造 37階建 /地下 2 階 |
| 築年数 | 1992/2 【新耐震基準】 |
| 設備
|
|
| エレベーター | 16基 |
営業マンの一言 大阪メトロ長堀鶴見緑地線 大阪ビジネスパーク徒歩1分 環状線大阪城公園徒歩スグ オフィス空間から大阪城公園の素晴らしい眺望を開放的に一望出来るグッドロケーション。柱のない伸びやかな空間とゾーン空調によって自由に室内レイアウト設計が可能となっております。 |
|
| 備考 | 駅直結ビル/貸し会議室/リフレッシュルーム/日祝、来店可能サービス型オフィス |

※取引態様:仲介
※上記、金額は募集条件です。 条件交渉など、詳細についてはお問合せ下さい。
※広告作成中に契約済みの場合はご容赦下さい。
※図面等現況が相違する場合は現況優先にてご容赦下さい。
クリスタルタワーの所在地周辺
ストリートビューを表示▼






堀中 忠久


