PMO EX新大阪・H1O新大阪 5階-No.48988
PMO EX新大阪・H1O新大阪 基本情報
| 種別 | 貸事務所(物件番号:48988) |
|---|---|
| 物件名 | PMO EX新大阪・H1O新大阪
2階にテナント専用サロンあり(無料)・一般フロア |
| 住所 | 大阪市淀川区宮原4-2-10 |
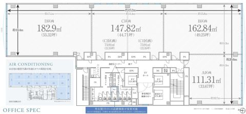
| 所在階 | 5階部分A号室 その他、貸室 |
| 契約面積 | 33.67 坪・ 111.31 ㎡ |
| 賃料 | お電話・メールにてお問合下さい。 |
| 共益費 | お電話・メールにてお問合下さい。 |
| 月額合計 | お電話・メールにてお問合下さい。 |
| 敷金 | お電話・メールにてお問合下さい。 |
| 最寄駅 |
御堂筋線 『
新大阪 』
5 分
御堂筋線 『 東三国 』 10 分 東海道本線 『 新大阪 』 7 分 |
| 構造 | コンクリート充填鋼管構造 12階建 |
| 築年数 | 2021/6 【新耐震基準】 |
| 設備
|
|
| エレベーター | 3基 |
営業マンの一言 大阪メトロ御堂筋線新大阪駅徒歩5分 大阪メトロ御堂筋線東三国駅徒歩10分と複数駅利用可能 2021年竣工新耐震基準建物 ワンフロア100坪以上ある視認性の高い賃貸テナントビル |
|
| 備考 | リフレッシュルーム |

※取引態様:仲介
※上記、金額は募集条件です。 条件交渉など、詳細についてはお問合せ下さい。
※広告作成中に契約済みの場合はご容赦下さい。
※図面等現況が相違する場合は現況優先にてご容赦下さい。
PMO EX新大阪・H1O新大阪の所在地周辺
PMO EX新大阪・H1O新大阪 その他の部屋情報
物件を再検索する
PMO EX新大阪・H1O新大阪 関連物件
PMO EX新大阪・H1O新大阪 近隣のよく似た坪数の貸事務所
-
弥生新大阪第一ビル
大阪市東淀川区西淡路1
御堂筋線「新大阪」徒歩6分
34.0坪 -
新大阪第一ビル
大阪市淀川区西中島5
御堂筋線「新大阪」徒歩4分
34.0坪 -
大昭ビル
大阪市淀川区西中島6
御堂筋線「新大阪」徒歩5分
32.38坪 -
オリエンタル新大阪ビル
大阪市淀川区西中島7
御堂筋線「新大阪」徒歩2分
32.98坪 -
新大阪ドイビル
大阪市淀川区西中島7
御堂筋線「新大阪」徒歩3分
36.53坪 -
第2スエヒロビル
大阪市淀川区西中島7
御堂筋線「新大阪」徒歩3分
30.95坪 -
日宝北2号館ビル
大阪市淀川区西中島7
御堂筋線「新大阪」徒歩5分
34.06坪 -
ホーククレセント第一ビル
大阪市淀川区西中島7
御堂筋線「新大阪」徒歩4分
39.2坪 -
新大阪第3ドイビル
大阪市淀川区西宮原1
御堂筋線「新大阪」徒歩6分
39.2坪 -
新大阪千代田ビル別館
大阪市淀川区宮原4
御堂筋線「新大阪」徒歩6分
31.21坪






堀中 忠久













