毎日インテシオ 2階-No.49747
堀中 忠久ホリナカ タダヒサ
毎日インテシオの豆知識
「毎日インテシオ」がある大阪ガーデンシティは、文化と情報が交流・集積する複合都市大阪・梅田。
未来を創造し発信するさまざまな企業とともに、明日のビジネスをリードします。
「毎日インテシオ」へのアクセスは、JR「大阪駅」、地下鉄・阪急・阪神の各「梅田駅」と地下道で直結しています。
関西国際空港・大阪国際空港へはリムジンバスで直行できます。
大阪市内はもちろん、各都市へのアクセスの良さが、スピードを増す新時代のビジネスを強力にサポートします。
貸室内は無柱で広々としたオフィス空間、レイアウトも自在にデザインできます。
OAフロアでありながら、天井の高さは2.8mを確保。
採光性に優れた快適なオフィス環境です。
高層階・低層階それぞれへ、専用エレベーターで機能的かつスムーズに移動可能。
非接触型ICカードによる入退室をはじめ高度なセキュリティシステムで安心・安全の管理体制です。
また、隣接する「毎日新聞」ビルとの連動もされており、オフィスでの日常をより充実させる施設が整っています。
毎日インテシオ 基本情報
| 種別 | 貸事務所(物件番号:49747) |
|---|---|
| 物件名 | 毎日インテシオ |
| 住所 | 大阪市北区梅田3-4-5 |
| 所在階 | 2階部分号室 |
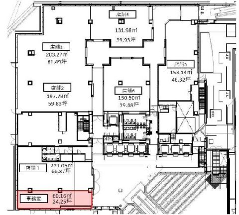
| 契約面積 | 24.25 坪・ 80.17 ㎡ |
| 賃料 | 総額
400,125 円 (税抜)・坪単価
16,500 円/坪 (税抜) 総額 440,138 円(税含む) |
| 共益費 | 総額 109,125 円 (税抜)・坪単価 4,500 円/坪 (税抜) 総額 120,038 円 (税含む) |
| 月額合計 | 総額 509,250 円(税抜)・坪単価 21,000 円(税抜) 総額 560,175 円 (税含む) |
| 保証金 | 12ヶ月 |
| 解約引 | 無し |
| 費用備考 | その他諸費用あり |
| 最寄駅 |
四ツ橋線 『
西梅田 』
10 分
環状線 『 大阪 』 5 分 御堂筋線 『 梅田 』 10 分 |
| 構造 | 鉄骨鉄筋コンクリート造 21階建 /地下 5 階 |
| 築年数 | 2007/7 【新耐震基準】 |
| 設備
|
|
| エレベーター | 8基 |
営業マンの一言 西梅田エリアの築浅、ハイグレードオフィス大阪メトロ四ツ橋線 西梅田駅徒歩圏内 ダイヤモンドエリアの築浅、ハイグレードオフィス、JR「大阪」駅、各線「梅田」駅より地下道にて直結 1フロア302坪の大型賃貸オフィスビル |
|
| 備考 | 駅直結ビル/貸し会議室/リフレッシュルーム/日祝、来店可能サービス型オフィス |

※取引態様:仲介
※上記、金額は募集条件です。 条件交渉など、詳細についてはお問合せ下さい。
※広告作成中に契約済みの場合はご容赦下さい。
※図面等現況が相違する場合は現況優先にてご容赦下さい。
毎日インテシオの所在地周辺
入居テナント
物件を再検索する
毎日インテシオ 近隣のよく似た坪数の貸事務所
-
西梅田上島ビル
大阪市北区梅田2
四ツ橋線「西梅田」徒歩1分
20.32坪 -
桜橋第一ビル
大阪市北区梅田2
四ツ橋線「西梅田」徒歩4分
20.96坪 -
マルイト西梅田ビル
大阪市北区梅田3
四ツ橋線「西梅田」徒歩5分
23.2坪 -
毎日新聞ビル
大阪市北区梅田3
四ツ橋線「西梅田」徒歩4分
23.35坪 -
京富ビル
大阪市北区曾根崎新地1
四ツ橋線「西梅田」徒歩1分
21.38坪 -
若杉大阪駅前ビル
大阪市北区曾根崎新地2
四ツ橋線「西梅田」徒歩1分
24.8坪 -
近鉄堂島ビル
大阪市北区堂島2
四ツ橋線「西梅田」徒歩1分
23.3坪 -
堂北ビルディング
大阪市北区堂島2
四ツ橋線「西梅田」徒歩2分
22.01坪 -
堂島セントラルビル
大阪市北区堂島浜1
四ツ橋線「西梅田」徒歩6分
22.0坪





























