本町武田ビル 2階-No.49773
丹羽 美智子ニワミチコ
本町武田ビルの豆知識
「本町武田ビル」は、大阪市中央区久太郎町3丁目にございます賃貸事務所。
大阪市内を東西にはしる“中央大通り”南側に面した、ライトグレーの10階建てオフィスビル。
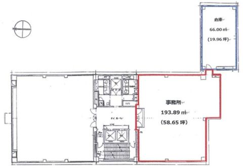
エレベーターやトイレ等の水廻りを建物中心に置いた、センターコアタイプが基本のフロア設計。
そのため道路側の貸室は明るいですが、奥側のお部屋は自然採光が採れませんので、必ず現地確認をお願いします。
オフィススペース面積は、約30坪からのご提案が可能です。
大阪市営地下鉄御堂筋線・中央線の「本町駅」より徒歩2分。
堺筋線の「堺筋本町駅」より徒歩3分と、マルチアクセス可能な、フットワークの良い大阪ビジネス拠点。
商都・大阪船場の中心地として、金融機関や飲食店舗、商店街が多く集まった、大変便利エリアです。
本町武田ビル 基本情報
| 種別 | 貸事務所(物件番号:49773) |
|---|---|
| 物件名 | 本町武田ビル |
| 住所 | 大阪市中央区久太郎町3-1-29 |
| 所在階 | 2階部分南号室 その他、貸室 |
| 契約面積 | 58.65 坪・ 193.89 ㎡ |
| 賃料 | お電話・メールにてお問合下さい。 |
| 共益費 | お電話・メールにてお問合下さい。 |
| 月額合計 | お電話・メールにてお問合下さい。 |
| 敷金 | お電話・メールにてお問合下さい。 |
| 最寄駅 |
御堂筋線 『
本町 』
2 分
堺筋線 『 堺筋本町 』 3 分 中央線 『 本町 』 2 分 |
| 構造 | 10階建 /地下 2 階 |
| 築年数 | 1988/1 【新耐震基準】 (リニューアル: 2012 ) |
| 設備
|
|
| エレベーター | 3基 |
営業マンの一言 御堂筋・船場エリアの賃貸事務所です。大阪・中央大通り沿いに面した本町駅徒歩2分の駅近・賃貸オフィス。 |
|

※取引態様:仲介
※上記、金額は募集条件です。 条件交渉など、詳細についてはお問合せ下さい。
※広告作成中に契約済みの場合はご容赦下さい。
※図面等現況が相違する場合は現況優先にてご容赦下さい。
本町武田ビルの所在地周辺
本町武田ビル その他の部屋情報
物件を再検索する
本町武田ビル 近隣のよく似た坪数の貸事務所
-
SYNASIA大阪本町ビル(FDS大阪本町)
大阪市中央区本町3
御堂筋線「本町」徒歩1分
57.39坪 -
淡路町ダイビル
大阪市中央区淡路町3
御堂筋線「本町」徒歩5分
56.7坪 -
御堂筋MTRビル
大阪市中央区淡路町3
御堂筋線「本町」徒歩3分
50.72坪 -
おおきに御堂筋瓦町ビル
大阪市中央区瓦町4
御堂筋線「本町」徒歩3分
57.52坪 -
井門瓦町第2ビル
大阪市中央区瓦町4
御堂筋線「本町」徒歩4分
51.8坪 -
本町南ガーデンシティ
大阪市中央区北久宝寺町3
御堂筋線「本町」徒歩2分
56.62坪 -
五味ビル
大阪市中央区久太郎町2
御堂筋線「本町」徒歩4分
53.88坪 -
谷口悦第2ビル
大阪市中央区久太郎町3
御堂筋線「本町」徒歩1分
59.15坪 -
本町イシカワビル
大阪市中央区久太郎町4
御堂筋線「本町」徒歩3分
51.18坪 -
岡地ビル
大阪市中央区久太郎町4
御堂筋線「本町」徒歩2分
56.7坪






















