あいおいニッセイ同和損保御堂筋ビル 6階-No.50977
堀中 忠久ホリナカ タダヒサ
あいおいニッセイ同和損保御堂筋ビルの豆知識
「あいおいニッセイ同和損保御堂筋ビル」は、大阪市中央区平野町3丁目にございます、賃貸事務所ビル。
大阪のメインストリート・日本の代表的企業が集まる“御堂筋”沿いに立つ、ハイグレード&インテリジェンス大型オフィスです。
交通アクセスは、地下鉄御堂筋線・京阪本線の「淀屋橋駅」より徒歩3分、「本町駅」より徒歩4分。
まさに大阪の中枢に位置し、フットワークの良い好立地オフィス。
貸室の天井高さは、OAフロア上に3m。
開放感あふれるゆとりの空間が、ビジネス環境をよりグレードUPさせてくれます。
面積は、最大約326坪から、最少約48坪の小規模区画の貸室が相談でき、自由度の高い、多種多様なご要望に対応可能な設計となっています。
リフレッシュルームや喫煙室、会議室など、設備も充実。
高効率な空調システムの採用と、空調負荷を低減する外装&窓の採用、自然換気も取り入れ省エネを実現したエコな建物。
安全性能と高めた防災設備と地震に対して優れた構造。
高度なセキュリティと24時間入退室可能な管理システムで安心の管理体制で、テナント様のビジネスをサポートしています。
あいおいニッセイ同和損保御堂筋ビル 基本情報
| 種別 | 貸事務所(物件番号:50977) |
|---|---|
| 物件名 | あいおいニッセイ同和損保御堂筋ビル |
| 住所 | 大阪市中央区平野町3-6-1 |
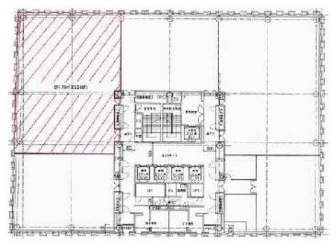
| 所在階 | 6階部分号室 |
| 契約面積 | 90.06 坪・ 297.72 ㎡ |
| 最寄駅 |
御堂筋線 『
淀屋橋 』
2 分
御堂筋線 『 本町 』 4 分 |
| 構造 | 鉄骨鉄筋コンクリート造 11階建 /地下 2 階 |
| 築年数 | 2005/3 【新耐震基準】 |
| 設備
|
|
| エレベーター | 5基 |
営業マンの一言 御堂筋に面した人気のオフィスビル!関西ビジネスの中枢「御堂筋」に面す、重厚感に溢れ、スペック、グレードに大変優れた大型オフィスビル |
|
| 備考 | 貸し会議室/リフレッシュルーム |

※取引態様:仲介
※上記、金額は募集条件です。 条件交渉など、詳細についてはお問合せ下さい。
※広告作成中に契約済みの場合はご容赦下さい。
※図面等現況が相違する場合は現況優先にてご容赦下さい。
あいおいニッセイ同和損保御堂筋ビルの所在地周辺
物件を再検索する
あいおいニッセイ同和損保御堂筋ビル 関連物件
あいおいニッセイ同和損保御堂筋ビル 近隣のよく似た坪数の貸事務所
-
大阪中之島ビル
大阪市北区中之島2
御堂筋線「淀屋橋」徒歩3分
96.76坪 -
大阪TKビル
大阪市中央区平野町3
御堂筋線「淀屋橋」徒歩2分
95.29坪 -
WAKITA藤村御堂筋ビル
大阪市中央区伏見町4
御堂筋線「淀屋橋」徒歩1分
91.48坪



























