RE-017 7階-No.51756
RE-017 基本情報
| 種別 | 貸事務所(物件番号:51756) |
|---|---|
| 物件名 | RE-017
東洋テック24時間セキュリティーシステム完備・共用部に給湯室、トイレ完備(男性トイレ4・6F/女性トイレ5・7F)・エアコン1基設置・ブラインドカーテン設備・オートロック(7~22時までOPEN)・禁煙4,5,6,7階 |
| 住所 | 大阪市中央区北久宝寺町2-6-1 |
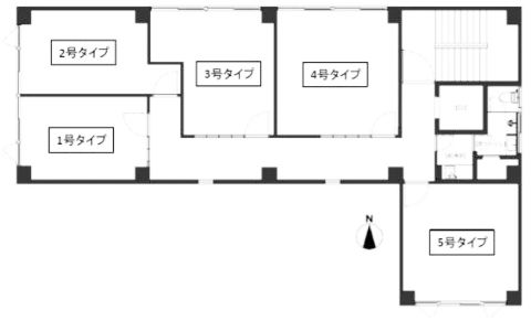
| 所在階 | 7階部分3号室 その他、貸室 |
| 契約面積 | 8.06 坪・ 26.65 ㎡ |
| 賃料 | 総額
120,000 円 (税抜)・坪単価
14,888 円/坪 (税抜) 総額 132,000 円(税含む) |
| 共益費 | 総額 10,000 円 (税抜)・坪単価 1,241 円/坪 (税抜) 総額 11,000 円 (税含む) |
| 月額合計 | 総額 130,000 円(税抜)・坪単価 16,129 円(税抜) 総額 143,000 円 (税含む) |
| 敷金 | 2ヶ月 |
| 礼金 | 2ヶ月 |
| 費用備考 | 賃貸保証加入要 |
| 最寄駅 |
御堂筋線 『
本町 』
7 分
堺筋線 『 堺筋本町 』 7 分 |
| 構造 | 鉄筋コンクリート造 7階建 |
| 築年数 | 1973/7 |
| 設備
|
|
| エレベーター | 1基 |
営業マンの一言 大阪メトロ御堂筋線 本町駅徒歩7分 堺筋本町駅利用可能 リノベーションデザインオフィス 人気のREシリーズテナント賃貸 |
|
| 備考 | リフレッシュルーム |

※取引態様:仲介
※上記、金額は募集条件です。 条件交渉など、詳細についてはお問合せ下さい。
※広告作成中に契約済みの場合はご容赦下さい。
※図面等現況が相違する場合は現況優先にてご容赦下さい。
RE-017の所在地周辺
RE-017 その他の部屋情報
物件を再検索する
RE-017 近隣のよく似た坪数の貸事務所
-
シルバービル(旧、第一シルバービル)
大阪市中央区安土町3
御堂筋線「本町」徒歩2分
7.5坪 -
七福ビル(淡路町七福ビル)
大阪市中央区淡路町3
御堂筋線「本町」徒歩5分
7.3坪 -
トーア紡第2ビル(トーア紡第二ビル)
大阪市中央区淡路町3
御堂筋線「本町」徒歩5分
9.88坪 -
ドリーム瓦町ビル
大阪市中央区瓦町2
御堂筋線「本町」徒歩5分
9.22坪 -
フカキ瓦町ビル
大阪市中央区瓦町3
御堂筋線「本町」徒歩3分
8.5坪 -
御堂アーバンライフ
大阪市中央区瓦町4
御堂筋線「本町」徒歩2分
7.1坪 -
マスザキヤ瓦町ビル
大阪市中央区瓦町4
御堂筋線「本町」徒歩4分
5.99坪 -
本町プレタビル
大阪市中央区瓦町4
御堂筋線「本町」徒歩4分
7.35坪 -
久宝ビル
大阪市中央区北久宝寺町4
御堂筋線「本町」徒歩3分
8.0坪 -
本町アーバンライフ
大阪市中央区北久宝寺町4
御堂筋線「本町」徒歩4分
8.63坪







堀中 忠久













