MF桜橋2ビル 9階-No.51908
中阪 浩之ナカサカ ヒロユキ
MF桜橋2ビルの豆知識
「MF桜橋2ビル」は、大阪市北区曾根崎新地2丁目にございます国道2号線沿いの賃貸オフィスビル。
2015年3月竣工予定の新築。
大阪で圧倒的な人気を誇る“大阪・梅田”。
中でも多くのオフィスビルや大型商業施設・ホテルなどが建ち並び、洗練されたビジネス街として注目されているのが“西梅田エリア”です。
近年、人気の高さから、各オフィスビルとも満室状態が続いておりましたので、待望の新築オフィスの誕生です。
交通アクセスは、地下鉄四つ橋線の「西梅田駅」より徒歩3分、JR東西線の「北新地駅」より徒歩4分、その他「JR大阪駅」や各私鉄の「梅田駅」も徒歩圏内、阪神高速道路「梅田」出入口にも近く、ビジネス環境として利便性に優れています。
ガラスカーテンウォールの外観と充実した設備が整った快適なオフィス空間。
また、建物と基礎の間に積層ゴムを配置した免震装置を設け、揺れの少ない構造を採用。在館者の安全確保はもちろん、OA機器やオフィス家具の転倒等による被害を防止し、オフィス機能を確保しています。
MF桜橋2ビル 基本情報
| 種別 | 貸事務所(物件番号:51908) |
|---|---|
| 物件名 | MF桜橋2ビル |
| 住所 | 大阪市北区曾根崎新地2-6-24 |
| 所在階 | 9階部分C号室 その他、貸室 |
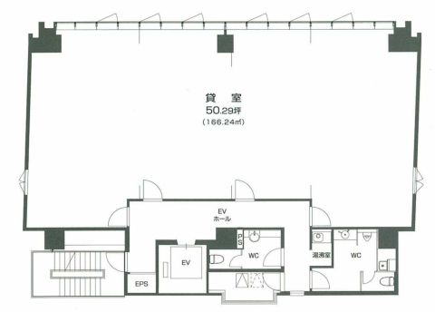
| 契約面積 | 9.58 坪・ 31.67 ㎡ |
| 賃料 | お電話・メールにてお問合下さい。 |
| 共益費 | お電話・メールにてお問合下さい。 |
| 月額合計 | お電話・メールにてお問合下さい。 |
| 敷金 | お電話・メールにてお問合下さい。 |
| 最寄駅 |
四ツ橋線 『
西梅田 』
3 分
東西線 『 北新地 』 4 分 環状線 『 大阪 』 7 分 |
| 構造 | 鉄筋コンクリート造 11階建 |
| 築年数 | 2015/3 【新耐震基準】 |
| 設備
|
|
| エレベーター | 1基 |
営業マンの一言 大阪・西梅田のハイグレード賃貸事務所。大阪メトロ四ツ橋線 西梅田駅徒歩3分 東西線・大阪環状線も利用可能 2号線に面した西梅田エリア・2015年春竣工の賃貸オフィスビルです。 |
|

※取引態様:仲介
※上記、金額は募集条件です。 条件交渉など、詳細についてはお問合せ下さい。
※広告作成中に契約済みの場合はご容赦下さい。
※図面等現況が相違する場合は現況優先にてご容赦下さい。
MF桜橋2ビルの所在地周辺
MF桜橋2ビル その他の部屋情報
物件を再検索する
MF桜橋2ビル 関連物件
MF桜橋2ビル 近隣のよく似た坪数の貸事務所
-
ブリーゼタワー
大阪市北区梅田2
四ツ橋線「西梅田」徒歩1分
7.07坪 -
千代田ビル西館
大阪市北区梅田2
四ツ橋線「西梅田」徒歩2分
9.09坪 -
桜橋ホワイトビル
大阪市北区梅田2
四ツ橋線「西梅田」徒歩3分
5.14坪 -
桜橋八千代ビル
大阪市北区梅田2
四ツ橋線「西梅田」徒歩2分
8.9坪 -
千代田ビル西別館
大阪市北区梅田2
四ツ橋線「西梅田」徒歩2分
6.64坪 -
不動ビル
大阪市北区曾根崎新地2
四ツ橋線「西梅田」徒歩3分
7.2坪 -
西村ビル
大阪市北区曾根崎新地2
四ツ橋線「西梅田」徒歩1分
7.0坪 -
堂島アバンザビル
大阪市北区堂島1
四ツ橋線「西梅田」徒歩2分
8.46坪 -
中村屋ビルディング
大阪市北区堂島2
四ツ橋線「西梅田」徒歩4分
8.98坪 -
桜橋千代田ビル
大阪市北区堂島2
四ツ橋線「西梅田」徒歩1分
6.66坪





















