三菱UFJ信託銀行大阪ビル 8階-No.52104
三菱UFJ信託銀行大阪ビル その他の貸室情報
三菱UFJ信託銀行大阪ビル 基本情報
| 種別 | 事務所(物件番号:52104) |
|---|---|
| 物件名 | 三菱UFJ信託銀行大阪ビル |
| 住所 | 大阪市中央区伏見町3-6-3 |
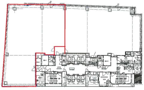
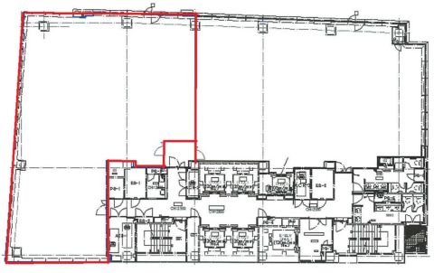
| 所在階 | 8階部分フロア号室 |
| 契約面積 | 185.21 坪・ 612.27 ㎡ |
| 最寄駅 |
御堂筋線 『
梅田 』
1 分
御堂筋線 『 本町 』 5 分 京阪本線 『 淀屋橋 』 3 分 |
| 構造 | 鉄骨鉄筋コンクリート造 13階建 /地下 2 階 |
| 築年数 | 2009/8 【新耐震基準】 |
| 設備
|
|
| エレベーター | 6基 |
営業マンの一言 御堂筋に面したセキュリティが行き届いたハイグレードオフィスビル。 |
|

※取引態様:仲介
※上記、金額は募集条件です。 条件交渉など、詳細についてはお問合せ下さい。
※広告作成中に契約済みの場合はご容赦下さい。
※図面等現況が相違する場合は現況優先にてご容赦下さい。
三菱UFJ信託銀行大阪ビルの所在地周辺
ストリートビューを表示▼














中阪 浩之



