難波御堂筋センタービル 4階-No.52273
中阪 浩之ナカサカ ヒロユキ
難波御堂筋センタービルの豆知識
「難波御堂筋センタービル」は名称通り、大阪市中央区難波4丁目、御堂筋に面した賃貸オフィスビル。
地下鉄御堂筋線「なんば駅」の10番出口に直結しており、地下通路を通れば、千日前線・近鉄電車・南海電車へもストレスフリーのアクセスが可能です。
「難波御堂筋センタービル」の魅力は、立地だけではござません。
大阪・ミナミ“なんば”という抜群のロケーションを活かし、土曜日・日曜・祝日もエントランスを開放しておりますので、オフィス使用はもちろん、来店型の業種様にもオススメです。
エレベーターは荷物用も含めて4基、駐車場も併設、駐輪場もございます。
機械警備・個別空調・OAフロア・男女別のシャワートイレと快適なオフィススペースでビジネス効率も増します。
1階に“洋服の青山”さん、上層階には献血ルームもあります。
最近の献血ルームは、ゆったりしたスペースで、癒しの空間としても、とても充実しています。
是非、定期的に献血にご協力くださいませ。
難波御堂筋センタービル 基本情報
| 種別 | 貸事務所(物件番号:52273) |
|---|---|
| 物件名 | 難波御堂筋センタービル |
| 住所 | 大阪市中央区難波4-4-4 |
| 所在階 | 4階部分号室 |
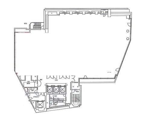
| 契約面積 | 35.38 坪・ 116.96 ㎡ |
| 賃料 | お電話・メールにてお問合下さい。 |
| 共益費 | お電話・メールにてお問合下さい。 |
| 月額合計 | お電話・メールにてお問合下さい。 |
| 敷金 | お電話・メールにてお問合下さい。 |
| 最寄駅 |
御堂筋線 『
なんば 』
1 分
四ツ橋線 『 なんば 』 5 分 南海線 『 難波 』 3 分 |
| 構造 | 鉄骨鉄筋コンクリート造 10階建 /地下 3 階 |
| 築年数 | 1992/4 【新耐震基準】 |
| 設備
|
|
| エレベーター | 4基 |
営業マンの一言 大阪・難波駅1分の賃貸事務所ビル、日祝もエントランスオープン大阪メトロ御堂筋線 「なんば駅」直結、JR線・近鉄線・南海線利用可能 大通りに面し、視認性も良く来客型オフィスに最適です |
|
| 備考 | 駅直結ビル/日祝、来店可能サービス型オフィス |

※取引態様:仲介
※上記、金額は募集条件です。 条件交渉など、詳細についてはお問合せ下さい。
※広告作成中に契約済みの場合はご容赦下さい。
※図面等現況が相違する場合は現況優先にてご容赦下さい。
難波御堂筋センタービルの所在地周辺
物件を再検索する
難波御堂筋センタービル 関連物件
難波御堂筋センタービル 近隣のよく似た坪数の貸事務所
-
南海SK難波ビル(旧:南海野村)
大阪市浪速区難波中1
御堂筋線「なんば」徒歩1分
32.08坪 -
なんばパークスタワー
大阪市浪速区難波中2
御堂筋線「なんば」徒歩2分
39.61坪 -
難波中ビル
大阪市浪速区難波中3
御堂筋線「なんば」徒歩8分
40.0坪 -
難波サンケイビル
大阪市浪速区湊町2
御堂筋線「なんば」徒歩4分
32.59坪 -
鎌田ビル
大阪市浪速区元町3
御堂筋線「なんば」徒歩5分
30.8坪 -
グルカスシティ
大阪市中央区心斎橋筋2
御堂筋線「なんば」徒歩2分
38.28坪 -
大阪戎橋h+ビル
大阪市中央区難波1
御堂筋線「なんば」徒歩1分
30.23坪 -
ティックランドビル(難波)
大阪市中央区難波2
御堂筋線「なんば」徒歩2分
30.25坪 -
三栄御堂筋ビル
大阪市中央区難波3
御堂筋線「なんば」徒歩1分
37.91坪 -
三信ビル
大阪市中央区難波4
御堂筋線「なんば」徒歩1分
37.29坪































