梅田辰巳ビル 8階-No.53191
梅田辰巳ビル 基本情報
| 種別 | 貸事務所(物件番号:53191) |
|---|---|
| 物件名 | 梅田辰巳ビル |
| 住所 | 大阪市北区神山町8-1 |
| 所在階 | 8階部分号室 その他、貸室 |
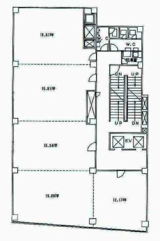
| 契約面積 | 47.0 坪・ 155.38 ㎡ |
| 賃料 | 総額
564,000 円 (税抜)・坪単価
12,000 円/坪 (税抜) 総額 620,400 円(税含む) |
| 共益費 | 総額 賃料に含む (税抜)・坪単価 賃料に含む (税抜) 総額 賃料に含む (税含む) |
| 月額合計 | 総額 564,000 円(税抜)・坪単価 12,000 円(税抜) 総額 620,400 円 (税含む) |
| 敷金 | 10ヶ月 |
| 解約引 | 無し |
| 最寄駅 |
谷町線 『
東梅田 』
4 分
堺筋線 『 扇町 』 4 分 御堂筋線 『 梅田 』 10 分 |
| 構造 | 鉄骨鉄筋コンクリート造 9階建 /地下 1 階 |
| 築年数 | 1969/7 (リニューアル: 2012 ) |
| 設備
|
|
| エレベーター | 2基 |
営業マンの一言 貸し会議室あります(有料)大阪メトロ谷町線 東梅田駅徒歩4分 梅田駅・阪急線も利用可能 扇町通りに面す視認性の高い賃貸ビル |
|
| 備考 | 貸し会議室 |

※取引態様:仲介
※上記、金額は募集条件です。 条件交渉など、詳細についてはお問合せ下さい。
※広告作成中に契約済みの場合はご容赦下さい。
※図面等現況が相違する場合は現況優先にてご容赦下さい。
梅田辰巳ビルの所在地周辺
ストリートビューを表示▼
梅田辰巳ビル その他の部屋情報
| 階 | 号室 | 坪数 | ㎡数 | 賃料 | 共益費 | 敷金 | |
|---|---|---|---|---|---|---|---|
| 4階 | 15.57坪 | 51.48㎡ | お電話・メールにて お問い合わせください。 | ![]() |
|||
| 7階 | . | 14.0坪 | 46.29㎡ | 168,000 円 | 賃料に含む | 10ヶ月 | ![]() |
| 8階 | 80.0坪 | 264.47㎡ | 960,000 円 | 賃料に含む | 10ヶ月 | ![]() |
|
| 8階 | . | 33.0坪 | 109.10㎡ | 396,000 円 | 賃料に含む | 10ヶ月 | ![]() |
物件を再検索する
梅田辰巳ビル 近隣のよく似た坪数の貸事務所
-
阪急グランドビル
大阪市北区角田町
谷町線「東梅田」徒歩2分
48.39坪 -
リアライズ梅田東ビル
大阪市北区曾根崎1
谷町線「東梅田」徒歩6分
42.59坪 -
お初天神イーストビル
大阪市北区曾根崎2
谷町線「東梅田」徒歩3分
41.87坪 -
阪急産業梅田ビル
大阪市北区太融寺町
谷町線「東梅田」徒歩2分
43.01坪 -
日本生命梅田ビル
大阪市北区堂山町
谷町線「東梅田」徒歩3分
40.0坪 -
北区西天満4丁目事務所・店舗
大阪市北区西天満4
谷町線「東梅田」徒歩8分
49.57坪 -
DKビル(旧:電子会館)
大阪市北区西天満6
谷町線「東梅田」徒歩4分
42.86坪




堀中 忠久










