ACCESSビル(アクセスビル) 4階-No.53217
ACCESSビル(アクセスビル) 基本情報
| 種別 | 貸事務所(物件番号:53217) |
|---|---|
| 物件名 | ACCESSビル(アクセスビル) |
| 住所 | 大阪市北区西天満4-6-18 |
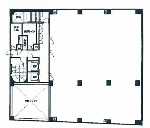
| 所在階 | 4階部分西号室 その他、貸室 |
| 契約面積 | 55.04 坪・ 181.96 ㎡ |
| 賃料 | 総額
374,272 円 (税抜)・坪単価
6,800 円/坪 (税抜) 総額 411,699 円(税含む) |
| 共益費 | 総額 181,632 円 (税抜)・坪単価 3,300 円/坪 (税抜) 総額 199,795 円 (税含む) |
| 月額合計 | 総額 555,904 円(税抜)・坪単価 10,100 円(税抜) 総額 611,494 円 (税含む) |
| 敷金 | 1ヶ月 |
| 礼金 | 3ヶ月 |
| 最寄駅 |
堺筋線 『
南森町 』
9 分
御堂筋線 『 淀屋橋 』 9 分 御堂筋線 『 梅田 』 8 分 |
| 構造 | 鉄骨鉄筋コンクリート造 7階建 |
| 築年数 | 1988/8 【新耐震基準】 |
| 設備
|
|
| エレベーター | 2基 |
営業マンの一言 大阪裁判所近くの大型ビジネスビル |
|

※取引態様:仲介
※上記、金額は募集条件です。 条件交渉など、詳細についてはお問合せ下さい。
※広告作成中に契約済みの場合はご容赦下さい。
※図面等現況が相違する場合は現況優先にてご容赦下さい。
ACCESSビル(アクセスビル)の所在地周辺
ストリートビューを表示▼
ACCESSビル(アクセスビル) その他の部屋情報
| 階 | 号室 | 坪数 | ㎡数 | 賃料 | 共益費 | 敷金 | |
|---|---|---|---|---|---|---|---|
| 3階 | 西 | 33.6坪 | 111.08㎡ | 228,480 円 | 110,880 円 | 1ヶ月 | ![]() |
| 5階 | 西 | 31.73坪 | 104.90㎡ | 215,764 円 | 104,709 円 | 1ヶ月 | ![]() |
| 6階 | 西 | 34.27坪 | 113.29㎡ | 233,036 円 | 113,091 円 | 1ヶ月 | ![]() |
物件を再検索する
ACCESSビル(アクセスビル) 関連物件
ACCESSビル(アクセスビル) 近隣のよく似た坪数の貸事務所
-
テンマ・セントラルビル
大阪市北区天神西町
堺筋線「南森町」徒歩4分
57.32坪 -
アドバンス天神橋ビル
大阪市北区天神橋1
堺筋線「南森町」徒歩6分
51.3坪 -
西天満パークビル2号館
大阪市北区西天満5
堺筋線「南森町」徒歩3分
52.0坪 -
富田町パークビル
大阪市北区西天満5
堺筋線「南森町」徒歩4分
57.0坪





中阪 浩之







