ANAスカイコネクトなんば 7階-No.54193
営業スタッフ紹介
堀中 忠久ホリナカ タダヒサ
ANAスカイコネクトなんばの豆知識
駅前広場より洗礼された高質性を感じらられる空間と
なんさん通りの広々とした歩行者専用道路を実施
なんばのイメージを一新した街並みとオフィスビル!
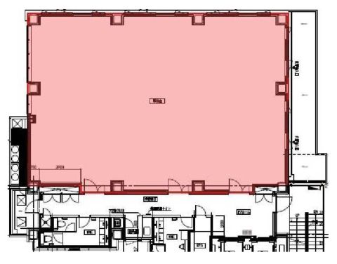
ANAスカイコネクトなんば 基本情報
| 種別 | 貸事務所(物件番号:54193) |
|---|---|
| 物件名 | ANAスカイコネクトなんば |
| 住所 | 大阪市中央区難波千日前1510-11 |
| 所在階 | 7階部分フロア号室 |
| 契約面積 | 59.56 坪・ 196.90 ㎡ |
| 最寄駅 |
御堂筋線 『
なんば 』
5 分
南海線 『 難波 』 1 分 千日前線 『 なんば 』 5 分 |
| 構造 | 鉄骨造 9階建 |
| 築年数 | 2025/3 【新耐震基準】 |
| 設備
|
|
| エレベーター | 2基 |
営業マンの一言 洗礼されたオフィスビル。1階、カフェ・2階、シェアオフィス |
|

※取引態様:仲介
※上記、金額は募集条件です。 条件交渉など、詳細についてはお問合せ下さい。
※広告作成中に契約済みの場合はご容赦下さい。
※図面等現況が相違する場合は現況優先にてご容赦下さい。
ANAスカイコネクトなんばの所在地周辺
ストリートビューを表示▼
物件を再検索する
ANAスカイコネクトなんば 関連物件
ANAスカイコネクトなんば 近隣のよく似た坪数の貸事務所
-
なんばパークスタワー
大阪市浪速区難波中2
御堂筋線「なんば」徒歩2分
58.76坪 -
太陽生命難波ビル
大阪市中央区難波2
御堂筋線「なんば」徒歩1分
50.01坪










