JRE堺筋本町ビル 13階-No.54342
中阪 浩之ナカサカ ヒロユキ
JRE堺筋本町ビルの豆知識
「堺筋本町ビル」は、大阪市中央区南本町1丁目にございます、賃貸事務所ビル。
堺筋沿い、中央大通りと本町通りの中間点に建つ、正面エントランスが特徴的なランドマークオフィス。
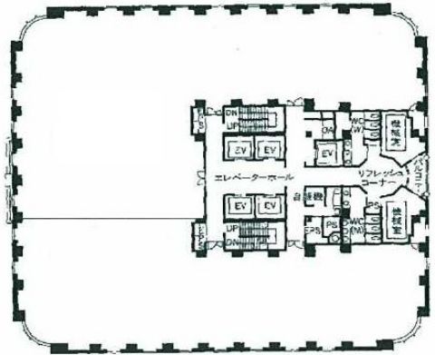
エントランスだけではなく、貸室内のコーナーや、リフレッシュコーナー、エレベーターホルの天井など、随所にアーチ型や曲線を取り入れた、ゆとりある・上品な美しさが印象的です。
大阪市営地下鉄・堺筋線・中央線の「堺筋本町駅」より徒歩1分と、交通アクセスも抜群のロケーション。
基準階面積は、約285坪。
約50坪の広さからの分割相談も可能です。
エレベーター5基(非常用含む)、機械警備、男女別シャワートイレ、リフレッシュルーム、大型車も可能な駐車場の併設と、ビルスペックも充実しており、快適なビジネスライフが約束されています。
OAフロアを10cmに、天井の高さは2.65mを確保され、ゆとりのオフィス空間。
大阪のメインストリート“御堂筋”へも徒歩可能と、大阪市内だけでなく近郊都市へのアクセスも良好。
ビジネス拠点として、最高クラスの環境が整っています。
JRE堺筋本町ビル 基本情報
| 種別 | 貸事務所(物件番号:54342) |
|---|---|
| 物件名 | JRE堺筋本町ビル
天井高3m |
| 住所 | 大阪市中央区南本町1-8-14 |
| 所在階 | 13階部分号室 その他、貸室 |
| 契約面積 | 284.18 坪・ 939.44 ㎡ |
| 賃料 | お電話・メールにてお問合下さい。 |
| 共益費 | お電話・メールにてお問合下さい。 |
| 月額合計 | お電話・メールにてお問合下さい。 |
| 敷金 | お電話・メールにてお問合下さい。 |
| 最寄駅 |
堺筋線 『
堺筋本町 』
1 分
御堂筋線 『 本町 』 5 分 中央線 『 堺筋本町 』 1 分 |
| 構造 | 鉄骨鉄筋コンクリート造 13階建 /地下 2 階 |
| 築年数 | 1992/11 【新耐震基準】 |
| 設備
|
|
| エレベーター | 5基 17人乗 |
営業マンの一言 堺筋本町駅徒歩1分の大型賃貸事務所ビル大阪メトロ堺筋線「堺筋本町」駅徒歩1分 御堂筋本町駅・中央線本町駅徒歩利用可能 至近の大型ハイグレードオフィスビル、個性的な外観が印象的です。 |
|
| 備考 | リフレッシュルーム |

※取引態様:仲介
※上記、金額は募集条件です。 条件交渉など、詳細についてはお問合せ下さい。
※広告作成中に契約済みの場合はご容赦下さい。
※図面等現況が相違する場合は現況優先にてご容赦下さい。
JRE堺筋本町ビルの所在地周辺
JRE堺筋本町ビル その他の部屋情報
物件を再検索する
JRE堺筋本町ビル 関連物件
JRE堺筋本町ビル 近隣のよく似た坪数の貸事務所
-
大阪JPビル
大阪市中央区瓦町1
堺筋線「堺筋本町」徒歩3分
301.82坪 -
新瓦町ビル
大阪市中央区瓦町2
堺筋線「堺筋本町」徒歩4分
287.09坪 -
クラボウアネックスビル
大阪市中央区久太郎町2
堺筋線「堺筋本町」徒歩1分
228.64坪




























