淀川6番館 5階-No.54996
淀川6番館 基本情報
| 種別 | 貸事務所(物件番号:54996) |
|---|---|
| 物件名 | 淀川6番館 |
| 住所 | 大阪市北区豊崎3-1-22 |
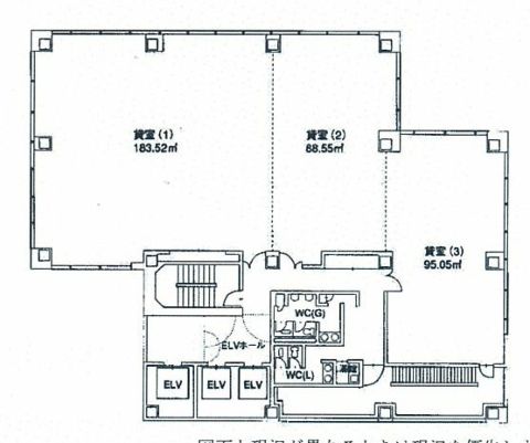
| 所在階 | 5階部分2号室 その他、貸室 |
| 契約面積 | 27.12 坪・ 89.66 ㎡ |
| 賃料 | お電話・メールにてお問合下さい。 |
| 共益費 | お電話・メールにてお問合下さい。 |
| 月額合計 | お電話・メールにてお問合下さい。 |
| 敷金 | お電話・メールにてお問合下さい。 |
| 最寄駅 |
御堂筋線 『
中津 』
4 分
御堂筋線 『 梅田 』 7 分 |
| 構造 | 鉄骨造 14階建 /地下 1 階 |
| 築年数 | 1993/2 【新耐震基準】 |
| 設備
|
|
| エレベーター | 3基 |
営業マンの一言 大阪メトロ御堂筋線 中津駅4分 梅田駅徒歩7分 豊崎エリア大通り沿いに面す視認性の高いハイグレード賃貸ビル。 |
|
| 備考 | オートロック |

※取引態様:仲介
※上記、金額は募集条件です。 条件交渉など、詳細についてはお問合せ下さい。
※広告作成中に契約済みの場合はご容赦下さい。
※図面等現況が相違する場合は現況優先にてご容赦下さい。
淀川6番館の所在地周辺
ストリートビューを表示▼
淀川6番館 その他の部屋情報
| 階 | 号室 | 坪数 | ㎡数 | 賃料 | 共益費 | 敷金 | |
|---|---|---|---|---|---|---|---|
| 3階 | 3 | 28.75坪 | 95.05㎡ | 345,000 円 | 86,250 円 | 12ヶ月 | ![]() |
| 13階 | 1303 | 28.75坪 | 95.05㎡ | お電話・メールにて お問い合わせください。 | ![]() |
||
物件を再検索する
淀川6番館 近隣のよく似た坪数の貸事務所
-
淀川5番館
大阪市北区豊崎3
御堂筋線「中津」徒歩4分
29.04坪 -
フジテラス大阪梅田
大阪市北区豊崎3
御堂筋線「中津」徒歩2分
28.56坪 -
三栄ビル(北区豊崎)
大阪市北区豊崎3
御堂筋線「中津」徒歩1分
26.5坪 -
三和豊崎第2 ビル
大阪市北区豊崎5
御堂筋線「中津」徒歩4分
30.0坪 -
MINOYAビル(ミノヤ)
大阪市北区中津1
御堂筋線「中津」徒歩1分
26.0坪





堀中 忠久








