OHSACHI新大阪 ビル 8階-No.55035
OHSACHI新大阪 ビル 基本情報
| 種別 | 貸事務所(物件番号:55035) |
|---|---|
| 物件名 | OHSACHI新大阪 ビル
ネームプレート費用30,000円・ワンフロア面積です。 |
| 住所 | 大阪市淀川区西中島5-13-7 |
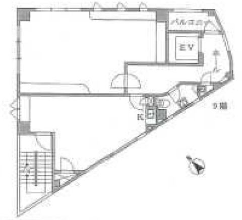
| 所在階 | 8階部分フロア号室 |
| 契約面積 | 20.93 坪・ 69.19 ㎡ |
| 賃料 | 総額
220,000 円 (税抜)・坪単価
10,511 円/坪 (税抜) 総額 242,000 円(税含む) |
| 共益費 | 総額 30,000 円 (税抜)・坪単価 1,433 円/坪 (税抜) 総額 33,000 円 (税含む) |
| 月額合計 | 総額 250,000 円(税抜)・坪単価 11,945 円(税抜) 総額 275,000 円 (税含む) |
| 敷金 | 12ヶ月 |
| 礼金 | 無し |
| 費用備考 | その他諸費用あり/火災保険加入要 |
| 最寄駅 |
御堂筋線 『
新大阪 』
5 分
東海道本線 『 新大阪 』 5 分 御堂筋線 『 西中島南方 』 5 分 |
| 構造 | S(鉄骨)造 9階建 |
| 築年数 | 2001/3 【新耐震基準】 |
| 設備
|
|
| エレベーター | 1基 |
営業マンの一言 |
|

※取引態様:仲介
※上記、金額は募集条件です。 条件交渉など、詳細についてはお問合せ下さい。
※広告作成中に契約済みの場合はご容赦下さい。
※図面等現況が相違する場合は現況優先にてご容赦下さい。
OHSACHI新大阪 ビルの所在地周辺
物件を再検索する
OHSACHI新大阪 ビル 関連物件
OHSACHI新大阪 ビル 近隣のよく似た坪数の貸事務所
-
新大阪ビル東館
大阪市東淀川区東中島1
御堂筋線「新大阪」徒歩3分
22.15坪 -
LUCID SQUARE新大阪(ルーシッドスクエア)
大阪市東淀川区東中島1
御堂筋線「新大阪」徒歩5分
24.68坪 -
東口ステーションビル
大阪市東淀川区東中島1
御堂筋線「新大阪」徒歩1分
24.52坪 -
新大阪駅前ビル(旧:サムティ新大阪)
大阪市東淀川区東中島2
御堂筋線「新大阪」徒歩8分
22.96坪 -
新大阪御幸ビル
大阪市淀川区西中島5
御堂筋線「新大阪」徒歩5分
23.41坪 -
興北ビル
大阪市淀川区西中島7
御堂筋線「新大阪」徒歩3分
22.7坪 -
オリエンタル新大阪ビル
大阪市淀川区西中島7
御堂筋線「新大阪」徒歩2分
23.01坪 -
新大阪ドイビル
大阪市淀川区西中島7
御堂筋線「新大阪」徒歩3分
22.8坪 -
新大阪ビル西館
大阪市淀川区西中島7
御堂筋線「新大阪」徒歩2分
21.69坪 -
花原第5ビル
大阪市淀川区西中島7
御堂筋線「新大阪」徒歩3分
21.01坪




中阪 浩之












