本町イシカワビル 3階-No.55478
中阪 浩之ナカサカ ヒロユキ
本町イシカワビルの豆知識
「本町イシカワビル」は、大阪市中央区久太郎町4丁目にございます、賃貸事務所ビル。
大阪市営地下鉄・御堂筋線・中央線・四つ橋線の「本町駅」より徒歩3分と、3WAYアクセスが可能な交通至便。
阪神高速入口も近く、ビルに駐車場もございますので、営業車をご使用の企業様におすすめの賃貸オフィス。
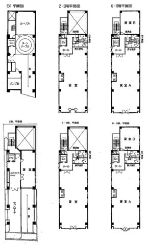
基準階面積は約50坪、20坪位に分割したフロアもございます。
周辺との調和を考えての落ち着いた外観。
個別空調、機械警備、男女別シャワートイレと、ビルスペックも充実の安心・快適なオフィス空間が提供されています。
大阪ビジネスの中心地“本町”は、地理的にも大阪の中心に位置しており、北の梅田、南のナンバ、ともに地下鉄で2駅とフットワークの良いビジネス拠点。
一方、「本町イシカワビル」の近隣には、通称“ざまさん”で親しまれている坐摩(イカスリ)神社や南御堂さんがあり、緑の多い落ち着いたロケーションです。
本町イシカワビル 基本情報
| 種別 | 貸事務所(物件番号:55478) |
|---|---|
| 物件名 | 本町イシカワビル
保証会社ご加入頂きます。 |
| 住所 | 大阪市中央区久太郎町4-2-1 |
| 所在階 | 3階部分号室 その他、貸室 |
| 契約面積 | 51.18 坪・ 169.19 ㎡ |
| 賃料 | 総額
相談 (税抜)・坪単価
相談 (税抜) 総額 (税含む) |
| 共益費 | 総額 153,540 円 (税抜)・坪単価 3,000 円/坪 (税抜) 総額 168,894 円 (税含む) |
| 月額合計 | 総額 相談(税抜)・坪単価 (税抜) 総額 (税含む) |
| 敷金 | 相談 |
| 解約引 | 20% |
| 最寄駅 |
御堂筋線 『
本町 』
3 分
四ツ橋線 『 本町 』 3 分 中央線 『 本町 』 2 分 |
| 構造 | 鉄骨鉄筋コンクリート造 9階建 /地下 1 階 |
| 築年数 | 1989/1 【新耐震基準】 |
| 設備
|
|
| エレベーター | 1基 |
営業マンの一言 大阪メトロ御堂筋線 「本町」駅徒歩3分 四ツ橋線本町・中央線本町駅利用可能 ワンフロアワンテナント 賃貸テナントオフィスビルです。 |
|

※取引態様:仲介
※上記、金額は募集条件です。 条件交渉など、詳細についてはお問合せ下さい。
※広告作成中に契約済みの場合はご容赦下さい。
※図面等現況が相違する場合は現況優先にてご容赦下さい。
本町イシカワビルの所在地周辺
本町イシカワビル その他の部屋情報
物件を再検索する
本町イシカワビル 関連物件
本町イシカワビル 近隣のよく似た坪数の貸事務所
-
SYNASIA大阪本町ビル(FDS大阪本町)
大阪市中央区本町3
御堂筋線「本町」徒歩1分
57.39坪 -
淡路町ダイビル
大阪市中央区淡路町3
御堂筋線「本町」徒歩5分
56.7坪 -
御堂筋MTRビル
大阪市中央区淡路町3
御堂筋線「本町」徒歩3分
50.72坪 -
おおきに御堂筋瓦町ビル
大阪市中央区瓦町4
御堂筋線「本町」徒歩3分
57.52坪 -
井門瓦町第2ビル
大阪市中央区瓦町4
御堂筋線「本町」徒歩4分
51.8坪 -
本町南ガーデンシティ
大阪市中央区北久宝寺町3
御堂筋線「本町」徒歩2分
56.62坪 -
五味ビル
大阪市中央区久太郎町2
御堂筋線「本町」徒歩4分
53.88坪 -
本町武田ビル
大阪市中央区久太郎町3
御堂筋線「本町」徒歩2分
58.65坪 -
谷口悦第2ビル
大阪市中央区久太郎町3
御堂筋線「本町」徒歩1分
59.15坪 -
岡地ビル
大阪市中央区久太郎町4
御堂筋線「本町」徒歩2分
56.7坪






























