センバ・セントラルビル 4階-No.700
中阪 浩之ナカサカ ヒロユキ
センバ・セントラルビルの豆知識
「センバ・セントラルビル」は、大阪市中央区本町2丁目にございます、賃貸事務所ビルです。
大阪を南北に貫く御堂筋と堺筋の間、東西にはしる本町通りに面した、まさに商都大阪・船場のど真ん中に位置する好ロケーションオフィス。
ゆえに、交通アクセスも、大阪市メトロ・御堂筋線・中央線の「本町駅」、堺筋線・中央線の「堺筋本町駅」と、3WAYの利用が可能な抜群のフットワーク。
基準階面積が約300坪の9階建ての大型ビル。
築40年以上になりますが、2015年3月には耐震工事も完了。
エレベーター3基、個別空調・OAフロア、有人警備のセキュリティ、駐車場併設と充実のビルスペック。
無料の会議室も有り、快適なビジネスワークが確保されています。
貸室は、ゆとりのワンフロア300坪から、分割した部屋も有り、バリエーションが豊富。
本町・堺筋本町界隈は、大阪国際ビル等多くの企業の本社・支社が集まる大阪ビジネスの中心地です。
センバ・セントラルビル 基本情報
| 種別 | 貸事務所(物件番号:700) |
|---|---|
| 物件名 | センバ・セントラルビル |
| 住所 | 大阪市中央区本町2-6-8 |
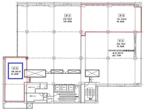
| 所在階 | 4階部分D号室 その他、貸室 |
| 契約面積 | 32.25 坪・ 106.62 ㎡ |
| 賃料 | 総額
483,750 円 (税抜)・坪単価
15,000 円/坪 (税抜) 総額 532,125 円(税含む) |
| 共益費 | 総額 賃料に含む (税抜)・坪単価 賃料に含む (税抜) 総額 賃料に含む (税含む) |
| 月額合計 | 総額 483,750 円(税抜)・坪単価 15,000 円(税抜) 総額 532,125 円 (税含む) |
| 保証金 | 4,837,500 円 |
| 解約引 | 全額返金 |
| 最寄駅 |
堺筋線 『
堺筋本町 』
2 分
御堂筋線 『 本町 』 3 分 中央線 『 堺筋本町 』 2 分 |
| 構造 | 鉄骨鉄筋コンクリート造 9階建 /地下 2 階 |
| 築年数 | 1969/9 (リニューアル: 耐震済 ) |
| 設備
|
|
| エレベーター | 3基 |
営業マンの一言 大阪・本町通りに面した大型賃貸事務所ビル。2015年3月に第2期耐震工事完了!安心の賃貸オフィス。貸会議室は無料 |
|
| 備考 | 免震・耐震補強/貸し会議室/リフレッシュルーム |

※取引態様:仲介
※上記、金額は募集条件です。 条件交渉など、詳細についてはお問合せ下さい。
※広告作成中に契約済みの場合はご容赦下さい。
※図面等現況が相違する場合は現況優先にてご容赦下さい。
センバ・セントラルビルの所在地周辺
センバ・セントラルビル その他の部屋情報
| 階 | 号室 | 坪数 | ㎡数 | 賃料 | 共益費 | 保証金 | |
|---|---|---|---|---|---|---|---|
| 6階 | C | 89.55坪 | 296.04㎡ | 1,343,250 円 | 賃料に含む | 13,432,500 円 | ![]() |
| 6階 | C+D | 121.45坪 | 401.49㎡ | 1,821,750 円 | 賃料に含む | 18,217,500 円 | ![]() |
| 6階 | D | 31.9坪 | 105.46㎡ | 478,500 円 | 賃料に含む | 4,785,000 円 | ![]() |
入居テナント
物件を再検索する
センバ・セントラルビル 関連物件
センバ・セントラルビル 近隣のよく似た坪数の貸事務所
-
(仮称)本町一丁目PJ
大阪市中央区本町1
堺筋線「堺筋本町」徒歩3分
32.3坪 -
ハウザー堺筋本町駅前ビル
大阪市中央区安土町2
堺筋線「堺筋本町」徒歩0.5分
30.0坪 -
CBMビル
大阪市中央区淡路町2
堺筋線「堺筋本町」徒歩4分
35.94坪 -
淡路町パークビル2号館
大阪市中央区淡路町2
堺筋線「堺筋本町」徒歩6分
33.0坪 -
新瓦町ビル
大阪市中央区瓦町2
堺筋線「堺筋本町」徒歩4分
31.61坪 -
三星SKビル
大阪市中央区北久宝寺町1
堺筋線「堺筋本町」徒歩3分
33.0坪 -
三星中央別館ビル
大阪市中央区久太郎町1
堺筋線「堺筋本町」徒歩2分
32.0坪 -
SD堺筋本町ビル(本町EAST)
大阪市中央区久太郎町1
堺筋線「堺筋本町」徒歩1分
31.8坪 -
三栄ビル
大阪市中央区久太郎町1
堺筋線「堺筋本町」徒歩1分
32.97坪 -
船場ダイヤモンドビル
大阪市中央区久太郎町2
堺筋線「堺筋本町」徒歩1分
40.0坪






















