昭和ビルディング(江戸堀) 5階-No.7773
中阪 浩之ナカサカ ヒロユキ
昭和ビルディング(江戸堀)の豆知識
「昭和ビル」は、大阪市西区江戸堀1丁目にございます賃貸事務所。
大阪市内を東西に貫く主要道路“土佐堀通り”沿い、土佐堀1東交差点の東南角地にある、地上9階建て。
どっしりとしたビル構えは視認性が高く、安心感のあるオフィスビルです。
大阪市営地下鉄四つ橋線の「肥後橋駅」より徒歩3分。
京阪中之島線の「渡辺駅」からは徒歩5分。
御堂筋線の「淀屋橋駅」からも徒歩8分の交通至便です。
肥後橋界隈は、大阪ビジネスエリアである梅田・淀屋橋に隣接するエリアとして、人気の拠点。
2014年に竣工の超高層ビル“中之島フェスティバルタワー”や2017年にはコンラッドホテルや多目的ホールのある“中之島フェスティバルタワー・ウエスト”が竣工予定です。
昭和ビルディング(江戸堀) 基本情報
| 種別 | 事務所(物件番号:7773) |
|---|---|
| 物件名 | 昭和ビルディング(江戸堀) |
| 住所 | 大阪市西区江戸堀1-18-27 |
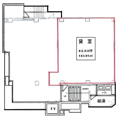
| 所在階 | 5階部分号室 その他、貸室 |
| 契約面積 | 35.93 坪・ 118.78 ㎡ |
| 賃料 | 総額
355,707 円 (税抜)・坪単価
9,900 円/坪 (税抜) 総額 391,278 円(税含む) |
| 共益費 | 総額 賃料に含む (税抜)・坪単価 賃料に含む (税抜) 総額 賃料に含む (税含む) |
| 月額合計 | 総額 355,707 円(税抜)・坪単価 9,900 円(税抜) 総額 391,278 円 (税含む) |
| 保証金 | 8ヶ月 |
| 解約引 | 2ヶ月 |
| 費用備考 | 賃貸保証加入要 |
| 最寄駅 |
四ツ橋線 『
肥後橋 』
3 分
御堂筋線 『 梅田 』 8 分 京阪中之島線 『 渡辺橋 』 5 分 |
| 構造 | 鉄骨造 9階建 |
| 築年数 | 1974/9 |
| 設備
|
|
| エレベーター | 1基 |
営業マンの一言 土佐堀通りに面した賃貸事務所ビル |
|

※取引態様:仲介
※上記、金額は募集条件です。 条件交渉など、詳細についてはお問合せ下さい。
※広告作成中に契約済みの場合はご容赦下さい。
※図面等現況が相違する場合は現況優先にてご容赦下さい。
昭和ビルディング(江戸堀)の所在地周辺
昭和ビルディング(江戸堀) その他の部屋情報
物件を再検索する
昭和ビルディング(江戸堀) 関連物件
昭和ビルディング(江戸堀) 近隣のよく似た坪数の貸事務所
-
肥後橋レックスビル
大阪市西区江戸堀1
四ツ橋線「肥後橋」徒歩1分
34.23坪 -
太陽ビル
大阪市西区江戸堀1
四ツ橋線「肥後橋」徒歩1分
30.21坪 -
肥後橋渡辺ビル
大阪市西区江戸堀1
四ツ橋線「肥後橋」徒歩1分
30.56坪 -
アール肥後橋ビル
大阪市西区江戸堀1
四ツ橋線「肥後橋」徒歩1分
30.63坪 -
肥後橋ニッタイビル
大阪市西区江戸堀1
四ツ橋線「肥後橋」徒歩1分
31.17坪 -
肥後橋エフビル(旧:肥後橋延三)
大阪市西区江戸堀1
四ツ橋線「肥後橋」徒歩1分
31.13坪 -
肥後橋イシカワビル
大阪市西区江戸堀1
四ツ橋線「肥後橋」徒歩4分
32.4坪 -
江戸堀グロウスビル
大阪市西区江戸堀1
四ツ橋線「肥後橋」徒歩5分
30.87坪 -
江戸堀センタービル
大阪市西区江戸堀2
四ツ橋線「肥後橋」徒歩7分
31.47坪 -
AMビル
大阪市西区江戸堀2
四ツ橋線「肥後橋」徒歩6分
32.8坪



















