内本町松林ビル 6階-No.20280
中阪 浩之ナカサカ ヒロユキ
内本町松林ビルの豆知識
「内本町松林ビル」は、大阪市中央区内本町1丁目にございます、賃貸事務所ビル。
本町通りに面した、小規模ながらシックな外観が重厚さを醸し出す10階建て。
大阪市営地下鉄・谷町線・中央線の「谷町四丁目駅」3番出入口より西へ大通り沿いに徒歩1分。
西隣り1階角にはファミリーマートがあり、示しやすい場所です。
建物内は一転、白を基調とした清潔感あふれる内装。
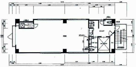
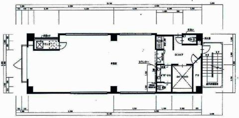
貸室は、約25坪のワンフロア貸し。
独立性・機密性が高い1フロア1テナントオフィスは、音モレなどの心配がなく、来客の多い業種様に最適。
ただし、トイレ・給湯室の水廻り部分も契約面積に含まれますので、実際にオフィスワークに利用できる広さをご確認ください。
内本町松林ビルの実効面積は、約21坪。
いずれの場合も事前に、机などのレイアウト配置をお忘れなく。
内本町松林ビル 基本情報
| 種別 | 事務所(物件番号:20280) |
|---|---|
| 物件名 | 内本町松林ビル |
| 住所 | 大阪市中央区内本町1-2-6 |
| 所在階 | 6階部分フロア号室 その他、貸室 |
| 契約面積 | 26.73 坪・ 88.37 ㎡ |
| 賃料 | 総額
160,000 円 (税抜)・坪単価
5,986 円/坪 (税抜) 総額 176,000 円(税含む) |
| 共益費 | 総額 60,000 円 (税抜)・坪単価 2,245 円/坪 (税抜) 総額 66,000 円 (税含む) |
| 月額合計 | 総額 220,000 円(税抜)・坪単価 8,230 円(税抜) 総額 242,000 円 (税含む) |
| 敷金 | 600,000 円 |
| 解約引 | スライド |
| 最寄駅 |
谷町線 『
谷町四丁目 』
1 分
中央線 『 谷町四丁目 』 1 分 |
| 構造 | 鉄筋コンクリート造 10階建 |
| 築年数 | 1992/7 【新耐震基準】 |
| 設備
|
|
| エレベーター | 1基 |
営業マンの一言 谷4駅スグのワンフロア貸し!大阪本町通りに面したワンフロアワンテナント賃貸オフィスビル。玄関オートロックでセキュリティ充実しております。 |
|
| 備考 | オートロック |

※取引態様:仲介
※上記、金額は募集条件です。 条件交渉など、詳細についてはお問合せ下さい。
※広告作成中に契約済みの場合はご容赦下さい。
※図面等現況が相違する場合は現況優先にてご容赦下さい。
内本町松林ビルの所在地周辺
内本町松林ビル その他の部屋情報
物件を再検索する
内本町松林ビル 近隣のよく似た坪数の貸事務所
-
シイナHDビル谷町
大阪市中央区和泉町1
谷町線「谷町四丁目」徒歩2分
26.73坪 -
五苑第二ビル
大阪市中央区内本町1
谷町線「谷町四丁目」徒歩1分
25.0坪 -
内本町第10松屋ビル
大阪市中央区内本町2
谷町線「谷町四丁目」徒歩4分
29.15坪 -
アイエスビル
大阪市中央区谷町2
谷町線「谷町四丁目」徒歩2分
29.66坪 -
GARNET BLDG.OSAKA
大阪市中央区農人橋2
谷町線「谷町四丁目」徒歩3分
27.35坪 -
アインストーンビル
大阪市中央区南新町1
谷町線「谷町四丁目」徒歩4分
26.25坪














