NJビル 6階-No.21594

営業スタッフ紹介
中阪 浩之
ナカサカ ヒロユキ

NJビル 基本情報

種別 貸事務所(物件番号:21594)
物件名 NJビル
住所 大阪市北区堂島1-4-4
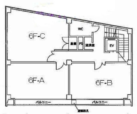
所在階 6階部分B号室
契約面積 9.24 坪・ 30.55 ㎡
最寄駅 四ツ橋線 『 西梅田 』 4 分
四ツ橋線 『 肥後橋 』 8 分
構造 鉄骨鉄筋コンクリート造  7階建
築年数 1964/3
設備
  • 24時間使用可
  • 空調(冷暖房)
  • 機械警備
  • エレベーター
  • 光ファイバー
  • OAフロア
  • 駐車場
  • 駐輪場
  • 管理人
  • 男女別トイレ
  • シャワートイレ
  • オートロック(インターホン付)
エレベーター 1基 

営業マンの一言

大阪メトロ四ツ橋線 「西梅田」 駅 徒歩8分、東西線「北新地」 駅 徒歩5分の賃貸事務所・デザイン性の高い外観。10坪~ご相談ください。

設備アイコンの説明

※取引態様:仲介
※上記、金額は募集条件です。 条件交渉など、詳細についてはお問合せ下さい。
※広告作成中に契約済みの場合はご容赦下さい。
※図面等現況が相違する場合は現況優先にてご容赦下さい。

NJビルの所在地周辺

ストリートビューを表示▼

物件を再検索する

物件の内見・詳細な資料をご希望の方はお気軽にお問い合せください!過去の取引価格に関しましては、直接お問い合せください。 (ホームページ上では、募集条件を掲載しております。)

  • お電話でのお問い合わせは、フリーダイヤル0120-882-207(TEL. 06-6732-8217)受付時間 9:30~18:00 定休日 日曜・祝日
  • メールでのお問い合わせはこちらから

NJビル 近隣のよく似た坪数の貸事務所

貸事務所のお問合せ・リクエスト

このページの先頭へ戻る