いちご御堂筋ビル 3階-No.21720
丹羽 美智子ニワミチコ
いちご御堂筋ビルの豆知識
「ヤシマ御堂筋ビル」は、大阪市中央区難波4丁目にございます御堂筋沿いの賃貸テナントビル。
地下鉄御堂筋線・千日前線の「なんば駅」近鉄線の「難波駅」から徒歩1分、南海電鉄・JR大和路線の「なんば駅」から徒歩3分と大阪・ミナミのど真ん中、抜群のロケーションです。
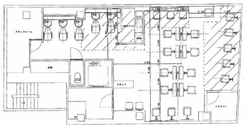
約35坪のワンフロア・ワンテナント仕様で、店舗使用もできます。
御堂筋にも面した視認性抜群の建物。
クリニックやエステなどのサロン使いやサービス型のオフィスに最適な物件です。
但し、同じ建物内で同業種のバッティングはNGとなりますから、事前にご相談くださいませ。
スグ南側の新歌舞伎座跡地は、結婚式場やホテルなどの複合ビルが建設予定です。(2014年現在)
周辺は、御堂筋を挟んで向かいに、ユニークな外観デザインが一際目を惹く・複合レジャー施設“ナンバヒップス”や“なんばマルイ”と“戎橋商店街”、南に行けば“高島屋大阪店”と、大阪一賑やかなエリアです。
いちご御堂筋ビル 基本情報
| 種別 | 店舗・事務所(物件番号:21720) |
|---|---|
| 物件名 | いちご御堂筋ビル
2024年 エントランスリニューアル実施済み・ 定期借家契約(原則5年)・設備: 電気・上下水道・ガス・空調・トイレ・照明器具・エレベーター・町会費6,400円・看板料3万(3箇所) |
| 住所 | 大阪市中央区難波4-2-4 |
| 所在階 | 3階部分フロア号室 |
| 契約面積 | 33.46 坪・ 110.62 ㎡ |
| 賃料 | 総額
903,420 円 (税抜)・坪単価
27,000 円/坪 (税抜) 総額 993,762 円(税含む) |
| 共益費 | 総額 賃料に含む (税抜)・坪単価 賃料に含む (税抜) 総額 賃料に含む (税含む) |
| 月額合計 | 総額 903,420 円(税抜)・坪単価 27,000 円(税抜) 総額 993,762 円 (税含む) |
| 敷金 | 5ヶ月 |
| 解約引 | スライド |
| 費用備考 | その他諸費用あり |
| 最寄駅 |
御堂筋線 『
なんば 』
1 分
四ツ橋線 『 四ツ橋 』 3 分 千日前線 『 なんば 』 3 分 |
| 構造 | S(鉄骨)造 12階建 /地下 1 階 |
| 築年数 | 2002/3 【新耐震基準】 (リニューアル: 2016年11月 ) |
| 設備
|
|
| エレベーター | 1基 |
営業マンの一言 大阪ミナミ・なんばのワンフロア貸し賃貸テナントビル大阪メトロ御堂筋線 なんば駅徒歩1分 四ツ橋線・千日前線・近鉄線・南海線・JR線も利用可能 御堂筋沿いのなんば好立地テナント!視認性抜群の為 サービス型オフィスに最適の商業ビルです。 ■エステ・美容室・クリニック向き |
|

※取引態様:仲介
※上記、金額は募集条件です。 条件交渉など、詳細についてはお問合せ下さい。
※広告作成中に契約済みの場合はご容赦下さい。
※図面等現況が相違する場合は現況優先にてご容赦下さい。
いちご御堂筋ビルの所在地周辺
物件を再検索する
いちご御堂筋ビル 関連物件
いちご御堂筋ビル 近隣のよく似た坪数の貸事務所
-
南海SK難波ビル(旧:南海野村)
大阪市浪速区難波中1
御堂筋線「なんば」徒歩1分
32.08坪 -
なんばパークスタワー
大阪市浪速区難波中2
御堂筋線「なんば」徒歩2分
39.61坪 -
難波中ビル
大阪市浪速区難波中3
御堂筋線「なんば」徒歩8分
40.0坪 -
難波サンケイビル
大阪市浪速区湊町2
御堂筋線「なんば」徒歩4分
32.59坪 -
鎌田ビル
大阪市浪速区元町3
御堂筋線「なんば」徒歩5分
30.8坪 -
グルカスシティ
大阪市中央区心斎橋筋2
御堂筋線「なんば」徒歩2分
38.28坪 -
難波御堂筋センタービル
大阪市中央区難波4
御堂筋線「なんば」徒歩1分
35.38坪 -
大阪戎橋h+ビル
大阪市中央区難波1
御堂筋線「なんば」徒歩1分
30.23坪 -
ティックランドビル(難波)
大阪市中央区難波2
御堂筋線「なんば」徒歩2分
30.25坪 -
三栄御堂筋ビル
大阪市中央区難波3
御堂筋線「なんば」徒歩1分
37.91坪


























