BRAVE難波(ブレイブ難波) 8階-No.30004

営業スタッフ紹介
中阪 浩之
ナカサカ ヒロユキ

BRAVE難波(ブレイブ難波) 基本情報

種別 事務所・店舗(物件番号:30004)
物件名 BRAVE難波(ブレイブ難波)
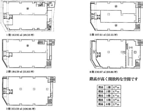
脱毛サロン跡・居抜きもご相談可です。
住所 大阪市中央区難波千日前15-15
所在階 8階部分号室
契約面積 69.86 坪・ 230.95 ㎡
賃料 総額 2,445,100 円 (税抜)・坪単価 35,000 円/坪 (税抜)
総額 2,689,610 円(税含む)
共益費 総額 賃料に含む (税抜)・坪単価 賃料に含む (税抜)
総額 賃料に含む (税含む)
月額合計 総額 2,445,100(税抜)・坪単価 35,000(税抜)
総額 2,689,610 (税含む)
保証金 相談
礼金 1ヶ月
最寄駅 御堂筋線 『 なんば 』 4 分
南海線 『 難波 』 1 分
千日前線 『 なんば 』 5 分
構造 鉄筋コンクリート造  8階建 /地下 1 階
築年数 2020/4 【新耐震基準】 
設備
  • 24時間使用可
  • 空調(冷暖房)
  • 機械警備
  • エレベーター
  • 光ファイバー
  • OAフロア
  • 駐車場
  • 駐輪場
  • 管理人
  • 男女別トイレ
  • シャワートイレ
  • オートロック(インターホン付)
エレベーター 2基 

営業マンの一言

大阪メトロ御堂筋線 なんば駅徒歩4分 南海線 なんば駅徒歩1分 近鉄線利用可能
■エステ・美容室・クリニック向き■飲食店舗向き■物販向き

設備アイコンの説明

※取引態様:仲介
※上記、金額は募集条件です。 条件交渉など、詳細についてはお問合せ下さい。
※広告作成中に契約済みの場合はご容赦下さい。
※図面等現況が相違する場合は現況優先にてご容赦下さい。

BRAVE難波(ブレイブ難波)の所在地周辺

ストリートビューを表示▼

物件を再検索する

物件の内見・詳細な資料をご希望の方はお気軽にお問い合せください!過去の取引価格に関しましては、直接お問い合せください。 (ホームページ上では、募集条件を掲載しております。)

  • お電話でのお問い合わせは、フリーダイヤル0120-882-207(TEL. 06-6732-8217)受付時間 9:30~18:00 定休日 日曜・祝日
  • メールでのお問い合わせはこちらから

BRAVE難波(ブレイブ難波) 近隣のよく似た坪数の貸事務所

貸事務所のお問合せ・リクエスト

このページの先頭へ戻る