BRAVE難波(ブレイブ難波)
BRAVE難波(ブレイブ難波) 貸室情報

種別 | 事務所・店舗 |
---|---|
物件名 | BRAVE難波(ブレイブ難波) |
住所 | 大阪市中央区難波千日前15-15 |
最寄駅 | 御堂筋線 『
なんば 』
4 分
南海線 『 難波 』 1 分 千日前線 『 なんば 』 5 分 |
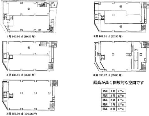
構造 | 鉄筋コンクリート造 8階建 /地下 1 階 |
築年数 | 2020/4 【新耐震基準】 |
設備
|
|
営業マンの一言 大阪メトロ御堂筋線 なんば駅徒歩4分 南海線 なんば駅徒歩1分 近鉄線利用可能■エステ・美容室・クリニック向き■飲食店舗向き■物販向き |
※取引態様:仲介
※上記、金額は募集条件です。 条件交渉など、詳細についてはお問合せ下さい。
※広告作成中に契約済みの場合はご容赦下さい。
※図面等現況が相違する場合は現況優先にてご容赦下さい。