アドバンス天神橋ビル 4階-No.42517
アドバンス天神橋ビル 基本情報
| 種別 | 事務所・店舗(物件番号:42517) |
|---|---|
| 物件名 | アドバンス天神橋ビル
24時間利用可・セキュリティ完備・駐車場有 |
| 住所 | 大阪市北区天神橋1-9-5 |
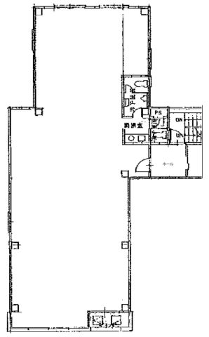
| 所在階 | 4階部分フロア号室 |
| 契約面積 | 51.3 坪・ 169.59 ㎡ |
| 賃料 | 総額
420,000 円 (税抜)・坪単価
8,187 円/坪 (税抜) 総額 462,000 円(税含む) |
| 共益費 | 総額 30,000 円 (税抜)・坪単価 585 円/坪 (税抜) 総額 33,000 円 (税含む) |
| 月額合計 | 総額 450,000 円(税抜)・坪単価 8,772 円(税抜) 総額 495,000 円 (税含む) |
| 保証金 | 1,000,000 円 |
| 解約引 | 500,000円 |
| 費用備考 | その他諸費用あり |
| 最寄駅 |
堺筋線 『
南森町 』
6 分
京阪中之島線 『 天満橋 』 9 分 東西線 『 大阪天満宮 』 6 分 |
| 構造 | 鉄骨造 7階建 |
| 築年数 | 1992/10 【新耐震基準】 |
| 設備
|
|
| エレベーター | 1基 |
営業マンの一言 南森町駅エリア・ワンフロア貸事務所!初期費用を抑え賃料もロープライスです。グレード良好 |
|

※取引態様:仲介
※上記、金額は募集条件です。 条件交渉など、詳細についてはお問合せ下さい。
※広告作成中に契約済みの場合はご容赦下さい。
※図面等現況が相違する場合は現況優先にてご容赦下さい。
アドバンス天神橋ビルの所在地周辺
ストリートビューを表示▼
物件を再検索する
アドバンス天神橋ビル 関連物件
アドバンス天神橋ビル 近隣のよく似た坪数の貸事務所
-
テンマ・セントラルビル
大阪市北区天神西町
堺筋線「南森町」徒歩4分
57.32坪 -
ACCESSビル(アクセスビル)
大阪市北区西天満4
堺筋線「南森町」徒歩9分
55.04坪 -
西天満パークビル2号館
大阪市北区西天満5
堺筋線「南森町」徒歩3分
52.0坪 -
富田町パークビル
大阪市北区西天満5
堺筋線「南森町」徒歩4分
57.0坪




丹羽 美智子






