梅田辰巳ビル 7階-No.53399
梅田辰巳ビル 基本情報
| 種別 | 貸事務所(物件番号:53399) |
|---|---|
| 物件名 | 梅田辰巳ビル |
| 住所 | 大阪市北区神山町8-1 |
| 所在階 | 7階部分.号室 その他、貸室 |
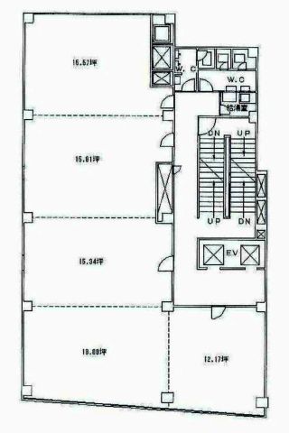
| 契約面積 | 14.0 坪・ 46.29 ㎡ |
| 賃料 | 総額
168,000 円 (税抜)・坪単価
12,000 円/坪 (税抜) 総額 184,800 円(税含む) |
| 共益費 | 総額 賃料に含む (税抜)・坪単価 賃料に含む (税抜) 総額 賃料に含む (税含む) |
| 月額合計 | 総額 168,000 円(税抜)・坪単価 12,000 円(税抜) 総額 184,800 円 (税含む) |
| 敷金 | 10ヶ月 |
| 解約引 | 無し |
| 最寄駅 |
谷町線 『
東梅田 』
4 分
堺筋線 『 扇町 』 4 分 御堂筋線 『 梅田 』 10 分 |
| 構造 | 鉄骨鉄筋コンクリート造 9階建 /地下 1 階 |
| 築年数 | 1969/7 (リニューアル: 2012 ) |
| 設備
|
|
| エレベーター | 2基 |
営業マンの一言 貸し会議室あります(有料)大阪メトロ谷町線 東梅田駅徒歩4分 梅田駅・阪急線も利用可能 扇町通りに面す視認性の高い賃貸ビル |
|
| 備考 | 貸し会議室 |

※取引態様:仲介
※上記、金額は募集条件です。 条件交渉など、詳細についてはお問合せ下さい。
※広告作成中に契約済みの場合はご容赦下さい。
※図面等現況が相違する場合は現況優先にてご容赦下さい。
梅田辰巳ビルの所在地周辺
梅田辰巳ビル その他の部屋情報
| 階 | 号室 | 坪数 | ㎡数 | 賃料 | 共益費 | 敷金 | |
|---|---|---|---|---|---|---|---|
| 4階 | 15.57坪 | 51.48㎡ | お電話・メールにて お問い合わせください。 | ![]() |
|||
| 8階 | 47.0坪 | 155.38㎡ | 564,000 円 | 賃料に含む | 10ヶ月 | ![]() |
|
| 8階 | 80.0坪 | 264.47㎡ | 960,000 円 | 賃料に含む | 10ヶ月 | ![]() |
|
| 8階 | . | 33.0坪 | 109.10㎡ | 396,000 円 | 賃料に含む | 10ヶ月 | ![]() |
物件を再検索する
梅田辰巳ビル 近隣のよく似た坪数の貸事務所
-
フキヤビル
大阪市北区角田町
谷町線「東梅田」徒歩3分
12.7坪 -
北大阪東通りビル
大阪市北区小松原町
谷町線「東梅田」徒歩3分
12.7坪 -
国道ビル~ラ・オカシオン
大阪市北区曾根崎2
谷町線「東梅田」徒歩4分
10.3坪 -
御堂筋キタムラビル
大阪市北区曾根崎2
谷町線「東梅田」徒歩2分
12.5坪 -
祥慶ビル
大阪市北区太融寺町
谷町線「東梅田」徒歩5分
10.0坪 -
ニュープラザビル
大阪市北区太融寺町
谷町線「東梅田」徒歩5分
14.95坪 -
エーワンビル
大阪市北区太融寺町
谷町線「東梅田」徒歩2分
12.4坪 -
東梅田八千代ビル
大阪市北区中崎西2
谷町線「東梅田」徒歩4分
12.57坪 -
プラザ梅新別館
大阪市北区西天満4
谷町線「東梅田」徒歩8分
14.38坪 -
第三青山ビル
大阪市北区西天満4
谷町線「東梅田」徒歩7分
12.5坪




中阪 浩之













